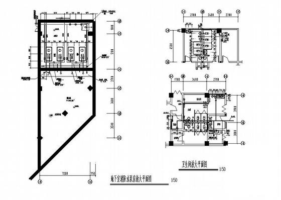
4层商业楼给排水大样图
- 发布时间:2021-12-11
- 评论次数:0
- 浏览次数:0
- 文件大小:1.91 MB
- 收藏次数:0
-
文件名称:
附件-995860758555859798688.rar
给排水大样图下载
- 4层商业楼给排水CAD图纸(卫生间大样图)
- 32层商业楼给排水竣工CAD图纸
- 18层商业楼给排水竣工CAD图纸
- 商业楼暖通CAD施工大样图
- 高层商业楼
- 8层商业楼给排水全套施工图纸平面图
- 4层商业楼给排水消防CAD施工图纸
- 4层砖混结构商业楼给排水消防CAD施工图纸
- 商业楼给排水及消防系统CAD施工图纸(自动喷淋)
- 商业楼给排水及消防CAD施工图纸(16年最新设计)
- 33层商业楼给排水设计CAD施工图纸
- 小区茶楼及小型商业楼给排水CAD施工图纸
- 8层商业楼给排水成套CAD施工图纸
- 11层商业楼给排水设计CAD图纸(自动喷水灭火系统)
- 高层商业楼给排水设计CAD施工方案图纸
- 11层商业楼给排水设计CAD图纸(自动喷水灭火系统)
- 25层商业楼给排水消防CAD施工图纸(消防水箱)
- 20层高层综合商业楼给排水CAD施工图纸
- 商业楼给排水全套施工图纸(丰富大样详图).dwg
- 高层住宅及商业楼给排水施工图纸cad平面图
全部评论
评论网友评论仅友表达个人看法,并不表明本站同意其观点,不得发布违反法律法规的内容!
