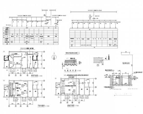
11层高层住宅小区变电室设计施工图纸
- 发布时间:2021-12-11
- 评论次数:0
- 浏览次数:0
- 文件大小:0.76 MB
- 收藏次数:0
-
文件名称:
附件-995856097579855589680.rar
高层住宅设计图纸下载
- 8065平米11层高层住宅楼小区变电室设计施工图纸
- 变电所配电室设计
- 小区地下室电气平面图纸(变电所布置图纸)
- 小区地下室电气平面图纸(变电所布置图纸)
- 金属制品变电室电气设计.dwg
- 小区箱式变电站CAD图纸
- 高层住宅变电所全套CAD图纸
- 4层加阁楼异形柱框架结构住宅及变电室小区结构施工图纸(3栋)
- 小区门卫室详细设计CAD图纸
- 小区变电站强电施工图纸
- 住宅小区变电站强电施工图纸
- 高层住宅楼变电所全套电气设计施工图纸
- 小区门卫室施工CAD详图纸
- 小区门卫室施工CAD详图纸
- 小区入口门卫室施工CAD图纸
- 大厦10KV变电室电气设计施工图纸
- 变电站主控室结构设计CAD施工图纸
- 小区高层住宅结构CAD图纸
- 送变电工程公司高层住宅楼结构设计.pdf
- 小区10KV变电所电气设计施工图纸
全部评论
评论网友评论仅友表达个人看法,并不表明本站同意其观点,不得发布违反法律法规的内容!
