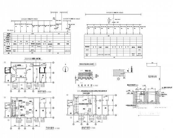
8065平米11层高层住宅楼小区变电室设计施工图纸
- 发布时间:2021-11-23
- 评论次数:0
- 浏览次数:0
- 文件大小:0.76 MB
- 收藏次数:0
- 
								文件名称: 附件-995856097579855589680.rar 附件-995856097579855589680.rar
								高层住宅楼层高下载
							
						- 11层高层住宅小区变电室设计施工图纸
- 11层高层住宅楼给排水设计CAD施工图纸
- 11层住宅楼小区电气施工图纸
- 小区11层住宅楼建筑施工CAD图纸
- 11层高层中医院放疗室墙身大样CAD图纸
- 34层高层小区建筑地下室电气CAD施工图纸
- 11层高档住宅楼社区电气CAD施工图纸(高32.42米)
- 11层高层住宅楼给排水暖通CAD施工图纸
- 30层高层小区住宅楼电气设计CAD施工图纸
- 11层高层住宅楼结构图纸
- 11层高层住宅楼结构CAD图纸
- 小区11层高层住宅楼给排水设计CAD施工图纸(自动喷水灭火系统)
- 变电所配电室设计
- 11层小区住宅楼电气设计CAD施工图纸
- 11层小区高层住宅楼电气设计CAD施工图纸
- 11层四单元小区住宅楼电气设计CAD施工图纸
- 小区11层住宅楼给排水设计CAD施工图纸
- 11层小高层住宅楼小区给排水设计CAD施工图纸
- 11层小区住宅楼给排水设计施工图纸(18号楼).dwg
- 小区11层住宅楼采暖设计CAD施工图纸.dwg
全部评论
						
							评论网友评论仅友表达个人看法,并不表明本站同意其观点,不得发布违反法律法规的内容!
						
						
 
	              	 
	              	 
	              	