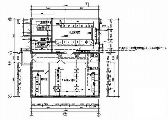
小区10KV变电所电气设计施工图纸
- 发布时间:2021-12-03
- 评论次数:0
- 浏览次数:0
- 文件大小:0.96 MB
- 收藏次数:0
-
文件名称:
附件-995857857879998587970.rar
变电所电气设计图纸下载
- 变电所电气设计.dwg
- 下通道变电所电气设计CAD图纸
- 变电所电气设计CAD施工图纸
- 变电所成套电气设计CAD图纸.dwg
- 220KV变电所电气设计.doc
- 化工降压变电所电气设计.doc
- 山羊项目锅炉房、变电所及职工公寓电气设计施工图纸
- 大厦10KV变电所电气设计施工图纸
- 250KVA变电所电气设计施工图纸
- 高层住宅楼变电所全套电气设计施工图纸
- 变电所MNS柜电气设计图纸.dwg
- 10KV变电所电气设计图纸.dwg
- 上2层变电所电气设计CAD施工图纸.dwg
- 10kv变电所二次电气设计CAD图纸
- 10kV变电所电气设计CAD初设图纸
- 10kv变电所电气设计CAD施工图纸
- 20KV变电所电气设计CAD施工图纸.dwg
- 110kv/10kv变电所电气设计.doc
- 机械厂降压变电所电气设计.doc
- 区110/35/10KV降压变电所电气设计.doc
全部评论
评论网友评论仅友表达个人看法,并不表明本站同意其观点,不得发布违反法律法规的内容!
