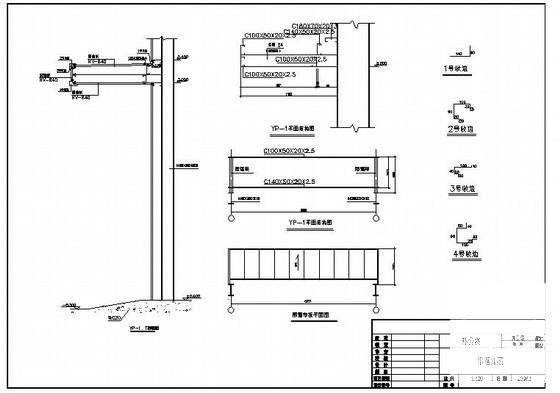
钢结构雨蓬节点构造详图纸cad
- 发布时间:2024-01-02
- 评论次数:0
- 浏览次数:0
- 文件大小:0.18 MB
- 收藏次数:0
-
文件名称:
附件-996058895579555906.rar
相关下载
- 钢结构雨蓬节点构造详图纸
- 钢结构点式雨蓬节点构造详图纸
- 钢结构雨蓬节点构造详细设计CAD图纸
- 钢结构雨蓬节点构造详细设计CAD图纸
- 钢结构厂房雨蓬结构节点构造CAD详图纸
- 煤仓钢结构节点构造详施工图纸
- 某雨蓬屋脊节点构造详图纸
- 移动雨蓬节点构造设计详图纸
- 雨蓬配筋节点构造详图纸
- 雨蓬施工节点构造详图纸
- 钢筋混凝土雨蓬的结构节点构造详施工图纸平面图及剖面图
- 医院门诊楼钢结构雨蓬节点构造详细设计CAD图纸
- 结构节点构造详施工图纸
- 雨蓬大样800节点构造详图纸
- 雨蓬收边节点构造详图纸大样
- 雨蓬拉杆平面布置施工节点构造详图纸
- 小型网架雨蓬结构节点构造详图纸
- 轻钢雨蓬结构大样节点构造详图纸
- 钢雨蓬大样节点构造设计详图纸
- 玻璃雨蓬节点构造详细设计CAD图纸
全部评论
评论网友评论仅友表达个人看法,并不表明本站同意其观点,不得发布违反法律法规的内容!
