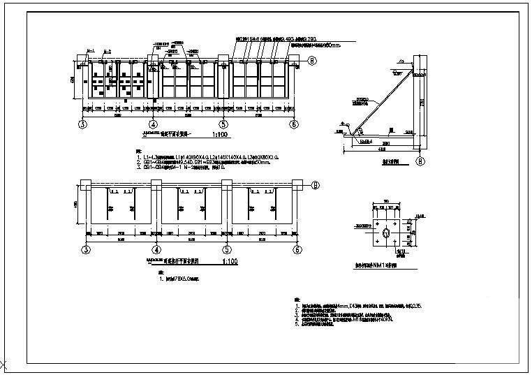
雨蓬拉杆平面布置施工节点构造详图纸
- 发布时间:2022-02-20
- 评论次数:0
- 浏览次数:0
- 文件大小:0.04 MB
- 收藏次数:0
-
文件名称:
附件-996057679770780958.rar
雨蓬拉杆平面布置图下载
- 玻璃雨蓬节点(雨蓬,拉杆活接头大样等)
- 雨蓬大样及节点详图纸平面布置图
- 消防雨蓬节点CAD详图(6页图纸)(平面布置图)
- 点式雨蓬设计节点构造详细CAD图纸(平面布置图)
- 消防雨蓬节点详图纸cad平面布置图
- 三联雨篷结构详图纸平面布置图及拉杆立面图
- 轻钢雨蓬结构详细设计CAD图纸(平面图)
- 轻钢雨蓬节点构造详图纸cad平面图
- 轻钢雨蓬结构详图纸cad平面图
- 轻钢玻璃雨蓬大样
- 新增圈梁及钢拉杆索引平面示意节点构造CAD详图纸
- 拉杆雨棚大样图纸2018
- 雨蓬节点详图纸cad
- 雨蓬节点详图纸cad
- 办公楼改造轻钢雨蓬结构CAD施工图纸(平面图)
- 玻璃雨蓬构造详细设计CAD图纸(屋顶平面图)
- 钢结构雨蓬节点构造详图纸
- 某雨蓬屋脊节点构造详图纸
- 移动雨蓬节点构造设计详图纸
- 雨蓬配筋节点构造详图纸
全部评论
评论网友评论仅友表达个人看法,并不表明本站同意其观点,不得发布违反法律法规的内容!
