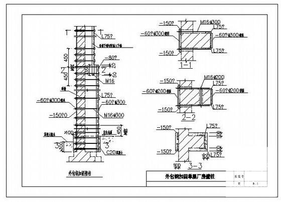
外包钢加固单层厂房壁柱节点构造详图纸cad
- 发布时间:2024-01-02
- 评论次数:0
- 浏览次数:0
- 文件大小:0.05 MB
- 收藏次数:0
- 
								文件名称: 附件-996057055058677805.rar 附件-996057055058677805.rar
								相关下载
							
						- 外包钢加固单层厂房壁柱详细设计CAD图纸
- 混凝土围套加固壁柱节点构造详图纸cad
- 通用柱外包钢加固节点构造CAD详图纸
- 外包钢加固独立柱节点构造详图纸cad
- 混凝土柱包钢加固节点构造详图纸cad
- 剪力墙平法节点构造详施工图纸扶壁柱构造
- 加大截面加固砌体壁柱节点构造详细设计CAD图纸
- 混凝土围套加固多层房屋壁柱节点构造CAD详图纸
- 加大截面加固砌体壁柱节点构造详图纸cad
- 单层工业厂房节点详大样图2016
- 外包钢加固简支梁节点构造详图纸cad
- 混凝土围套及外包钢加固独立柱节点构造详图纸cad
- 工程柱加大截面及包钢加固节点构造详图纸cad
- 柱外包钢加固大样详图纸
- 柱包钢加固详图纸(CAD)
- 柱包钢加固CAD详图纸
- 边柱外包钢加固、梁加固详图纸
- 柱加固节点构造详细设计CAD图纸(参照03SG611)(单层厂房)
- 工业厂房结构加固节点构造CAD详图纸.dwg
- 框架柱包钢加固CAD施工方案图纸(2013)(钢结构节点大样)
全部评论
						
							评论网友评论仅友表达个人看法,并不表明本站同意其观点,不得发布违反法律法规的内容!
						
						
