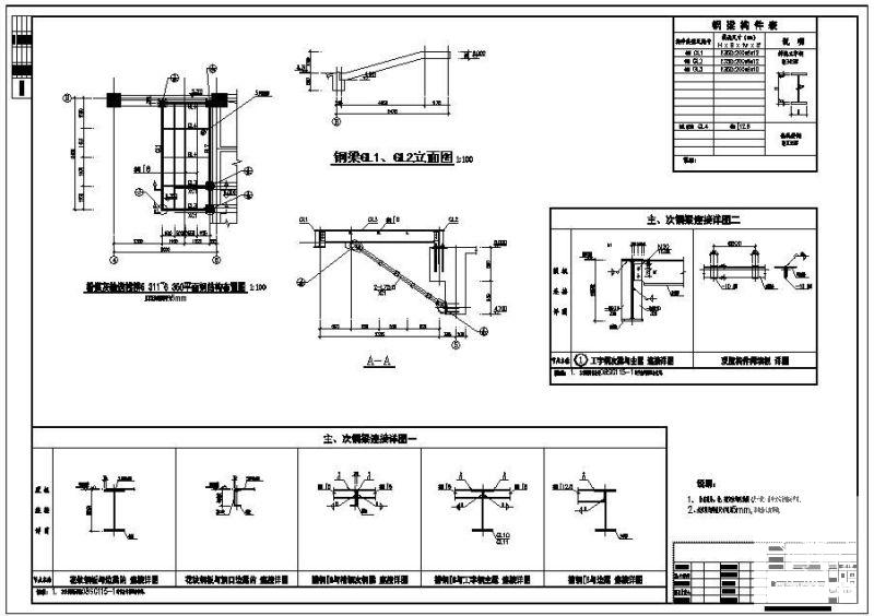
粉煤灰输送栈桥钢结构节点构造详图纸cad
- 发布时间:2024-01-02
- 评论次数:0
- 浏览次数:0
- 文件大小:0.41 MB
- 收藏次数:0
- 
								文件名称: 附件-996055079770877598.rar 附件-996055079770877598.rar
								相关下载
							
						- 皮带输送机栈桥节点构造CAD详图纸
- 60米跨度管状输送机栈桥钢结构CAD施工图纸(节点详图)
- 煤仓钢结构节点构造详施工图纸
- 结构节点构造详施工图纸
- 钢桁架带式输送机栈桥结构设计施工图纸
- 化工厂输送18度栈桥结构设计施工图纸
- 化工厂输送37度栈桥结构设计施工图纸
- 70米产品上仓带式输送机栈桥结构施工图纸
- 钢桁架带式输送机栈桥结构CAD施工图纸
- 强酸环境受损输送机栈桥加固出CAD施工图纸(工业建筑)
- 带式输送机栈桥钢桁架结构CAD施工图纸
- 钢桁架带式输送机栈桥结构设计CAD施工图纸
- 钢桁架带式输送机栈桥结构CAD施工图纸
- 化工厂输送37度栈桥结构设计CAD施工图纸
- 化工厂输送18度栈桥结构设计CAD施工图纸
- 钢结构CAD详大样图之钢管斜屋面节点构造CAD详大样图
- 输煤栈桥桩基节点构造CAD详图纸
- 栈桥基础节点构造详图纸cad
- 钢结构直跑楼梯节点构造详建筑设计CAD图纸(膨胀螺栓)
- 钢结构网架结施节点构造CAD详施工图纸
全部评论
						
							评论网友评论仅友表达个人看法,并不表明本站同意其观点,不得发布违反法律法规的内容!
						
						
 
	              	