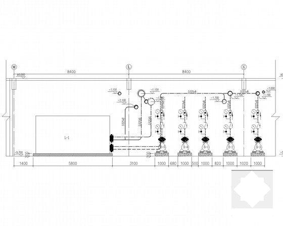
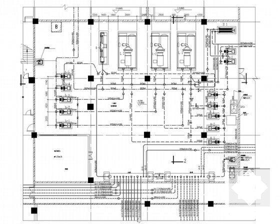
大型连锁卖场暖通空调系统设计施工大样图
- 发布时间:2021-12-10
- 评论次数:0
- 浏览次数:0
- 文件大小:10.51 MB
- 收藏次数:0
- 
								文件名称: 附件-996095976508807958.rar 附件-996095976508807958.rar
								暖通空调系统设计下载
							
						- 国际连锁星级酒店暖通空调系统设计施工图纸(著名设计院).dwg
- 4层大型卖场电气设计CAD施工图纸(消防报警系统)
- 17层五星级连锁酒店暖通空调系统设计CAD施工图纸.dwg
- 4层大型卖场电气CAD施工图纸(消防报警系统)
- 大型购物商场暖通空调设计CAD施工图纸
- 大型生产厂房暖通空调系统设计CAD施工图纸(流程图纸多)
- 大型商业广场暖通空调系统设计CAD施工图纸
- 4层大型商业街整套暖通空调全系统设计CAD施工图纸
- 科研楼暖通空调系统施工大样图
- 20层大型知名星级酒店暖通空调系统设计施工CAD大样图(形式全面系统大样图多)
- 7层大型交通综合项目暖通空调全系统CAD施工大样图.dwg
- 大型连锁购物广场配电系统施工图纸(车库)
- 大型连锁购物广场配电系统CAD施工图纸(设备控制原理图)()
- 6层国际连锁购物卖场装饰电气CAD施工图纸(设备控制原理图)
- 36000平米2层连锁便利超市空调通风系统设计施工图纸
- 2层连锁便利超市空调通风系统设计施工图纸
- 27层大型广场综合体暖通空调全套施工CAD大样图
- 6层国际连锁购物卖场装饰电气CAD施工大样图(设备控制原理图)(TN-S)
- 大型连锁超市电气CAD图纸(供配电)
- 4层大型商业街整套暖通空调全系统设计CAD施工图纸(人防、机房设计)
全部评论
						
							评论网友评论仅友表达个人看法,并不表明本站同意其观点,不得发布违反法律法规的内容!
						
						
 
	              	 
	              	 
	              	 
	              	 
	              	