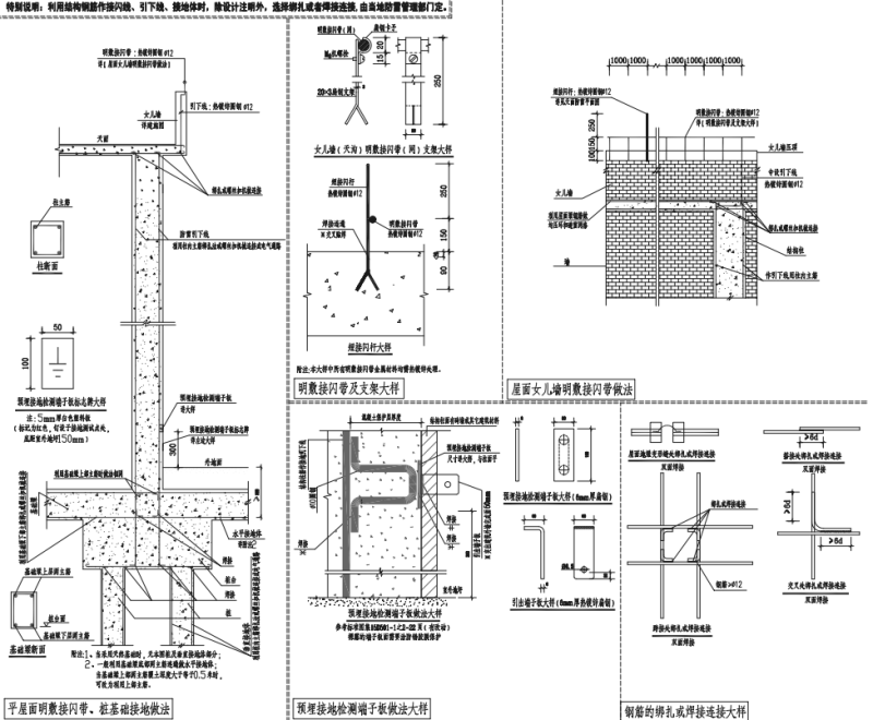
6层卫生院迁建项目-1#住院部、门诊楼防雷CAD平面图
- 发布时间:2024-01-02
- 评论次数:0
- 浏览次数:0
- 文件大小:11.53 MB
- 收藏次数:0
- 
								文件名称: 附件-996857597577797859.zip 附件-996857597577797859.zip
								相关下载
							
						- 从化区太平镇中心卫生院迁建项目-人防电气cad平面图
- 卫生院住院部强电CAD施工图纸(防雷接地)
- 中心卫生院迁建项目施工围蔽详图纸cad
- 6层住院部、门诊楼火灾自动报警CAD_PDF,平面图
- 二级卫生院迁建电气施工图纸cad平面图系统图
- 卫生院住院部强电设计CAD施工图纸.dwg
- 多层卫生院门诊楼电施施工图纸24张
- 乡卫生院3层门诊楼扩建建筑扩初图纸
- 医院建设项目门诊楼给排水施工图纸平面图及系统图
- 2层卫生院门诊强弱电施工图纸
- 2层卫生院门诊强弱电CAD施工图纸
- 3层医院住院部电气CAD施工图纸(防雷接地系统)
- 12层武警政治学院迁建项目施工图纸
- 污水处理厂搬迁建设项目结构CAD施工图纸
- 3层气象站迁建项目框架结构CAD施工图纸
- 警校迁建.dwg
- 医院4层门诊医技楼电气CAD施工图纸(防雷接地系统)
- 人民医院迁建项目3层行政办公楼建筑施工CAD图纸(平屋顶)
- 3层襄阳市襄州区人民医院迁建项目行政楼暖通CAD施工图纸
- 12层1#住院楼电气cad平面图及系统图
全部评论
						
							评论网友评论仅友表达个人看法,并不表明本站同意其观点,不得发布违反法律法规的内容!
						
						
 
	              	 
	              	