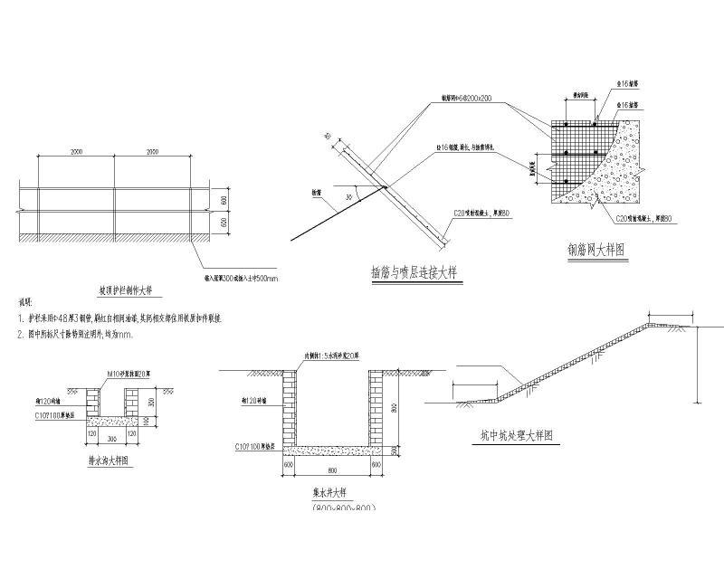
卫生院门诊楼基坑放坡挂网喷砼支护大样图cad平面布置图及剖面图
- 发布时间:2024-01-02
- 评论次数:0
- 浏览次数:0
- 文件大小:5.87 MB
- 收藏次数:0
- 
								文件名称: 附件-996876760899999959.rar 附件-996876760899999959.rar
								相关下载
							
						- 基坑放坡开挖及挂网喷射混凝土支护CAD详图纸.dwg
- 住宅小区基坑放坡开挖喷锚支护设计CAD大样图(原创)
- 地下车库放坡喷素混凝土基坑支护CAD施工大样图
- 深基坑放坡开挖及挂网喷射混凝土支护CAD施工大样图(计算书)
- 挂网喷锚深基坑支护施工图纸.
- 12米深基坑挂网喷锚支护CAD施工大样图
- 浅基坑放坡喷锚加木桩或槽钢组合支护CAD施工大样图
- 基坑土钉墙及放坡支护CAD施工大样图
- 深基坑放坡开挖及土钉墙支护CAD施工大样图
- 基坑自稳放坡及组合式边坡支护结构施工图纸cad平面图
- 放坡锚桩复合土钉墙深基坑支护施工大样图cad平面图及剖面图,立面图
- 基坑工程深层搅拌桩支护放坡开挖设计CAD大样图
- 深基坑放坡土钉墙支护CAD施工大样图及计算书
- 基坑边坡支护设计CAD图纸(钻孔桩喷锚支护土钉墙降水)
- 挂网喷锚护坡
- 边坡支护之喷锚CAD大样图
- 电站辅助洞室路基开挖及边坡挂网喷锚施工示意CAD图纸
- 基坑喷锚支护CAD施工大样图
- 住宅楼工程深基坑边坡土钉喷锚支护设计CAD大样图
- 基坑自然放坡土开挖支护CAD施工图纸
全部评论
						
							评论网友评论仅友表达个人看法,并不表明本站同意其观点,不得发布违反法律法规的内容!
						
						
 
	              	 
	              	 
	              	 
	              	 
	              	