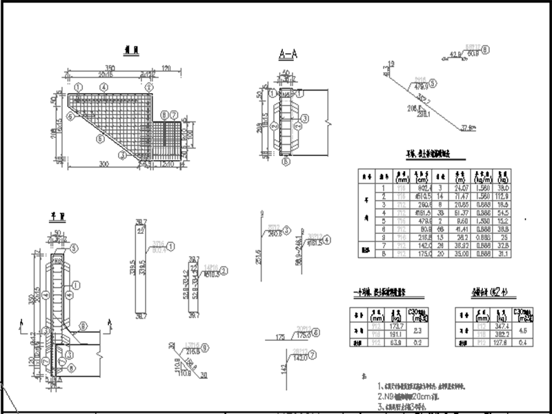
U型桥台设计图纸CAD(9张),构造图,布置图
- 发布时间:2024-01-02
- 评论次数:0
- 浏览次数:0
- 文件大小:0.87 MB
- 收藏次数:0
-
文件名称:
附件-996887868785770967.rar
相关下载
- 全长24米下部U型桥台独立小桥CAD施工图纸设计
- U型桥台空腹式石拱桥施工设计CAD图纸(完整)
- U型桥台侧墙顶部钢筋布置通用CAD图纸
- U型桥台台帽前墙接触面连接钢筋布置CAD图纸
- U型渠道断面设计CAD图纸,
- 三跨预应力混凝土连续刚构桥U型桥台台后处理设计图纸
- 双柱式墩和U型桥台3×20m预应力空心板桥设计cad图纸
- 桥台板凳台设计图纸CAD(7张),构造图,布置图
- U型渠道断面CAD图纸
- U型桥台,斜交预应力空心板桥完整施工图纸_钢筋混凝土空心板
- U型玻璃实用节点合集
- U型玻璃实用节点合集.dwg
- 特色花钵U型坐凳详图纸设计
- 预应力U型渡槽结构的优化设计
- 乡村公路小桥设计图纸构造图,桥型布置图
- 预应力混凝土连续箱梁桥设计图纸平面布置图及桥台构造图
- 3-10米空心板桥cad设计图纸,钢筋构造图和桥台布置图
- 4层U型中式酒店建筑施工CAD图纸
- ]U型景观泳池结构CAD施工图纸
- 预制U型渡槽工程CAD施工方案图纸
全部评论
评论网友评论仅友表达个人看法,并不表明本站同意其观点,不得发布违反法律法规的内容!
