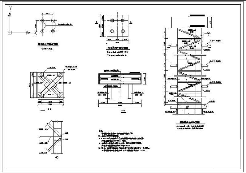
塔吊基础节点构造详图纸cad
- 发布时间:2024-01-02
- 评论次数:0
- 浏览次数:0
- 文件大小:0.04 MB
- 收藏次数:0
-
文件名称:
附件-996055056969999978.rar
相关下载
- 塔吊轨道基础节点构造详图纸
- 塔吊轨道基础图纸节点详图
- 塔吊附着立面节点构造详图纸
- 桩基础节点构造CAD详大样图
- 塔吊轨道基础CAD图纸
- 基础梁防水构造详cad图纸
- 塔吊基础施工方案
- 国际医院工程塔吊基础施工方案(附塔吊基础图纸,鲁班奖)
- 柱下混凝土独立基础大样及基础表节点构造详施工图
- 塔吊基础设计图纸cad
- 结构节点构造详施工图纸
- 高层酒店塔吊基础施工方案
- 塔吊基础平台加固方案_CAD
- QTZ5613塔吊基础设计_CAD
- 砌体结构构造大样节点构造详施工图纸
- 砌体结构刚性基础大样节点构造详施工图纸
- 住宅小区塔吊基础施工方案(TC5610TC5510塔吊基础计算书)
- 塔吊桩基础课程设计(CAD图纸)
- 大型塔吊基础布置及详图纸cad
- 煤仓钢结构节点构造详施工图纸
全部评论
评论网友评论仅友表达个人看法,并不表明本站同意其观点,不得发布违反法律法规的内容!
