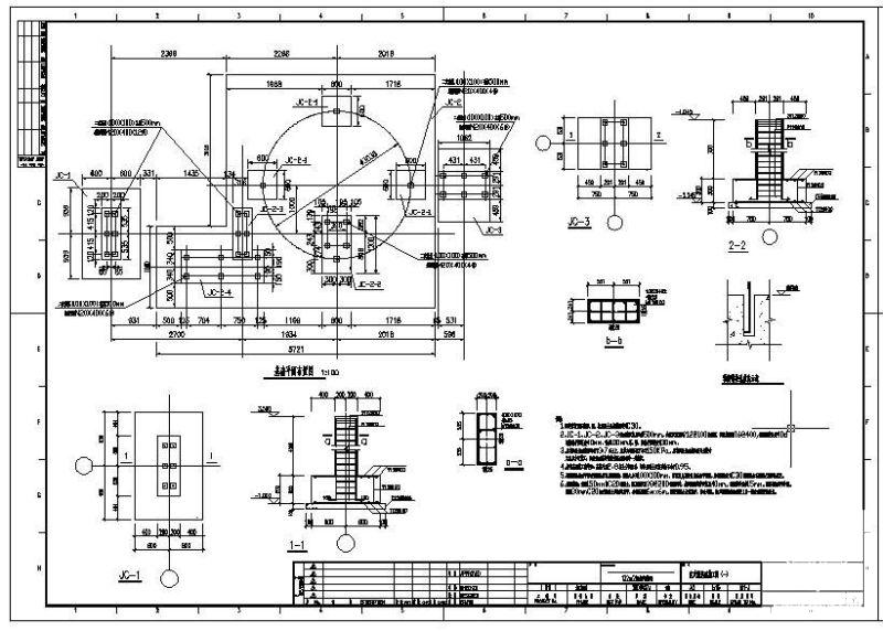
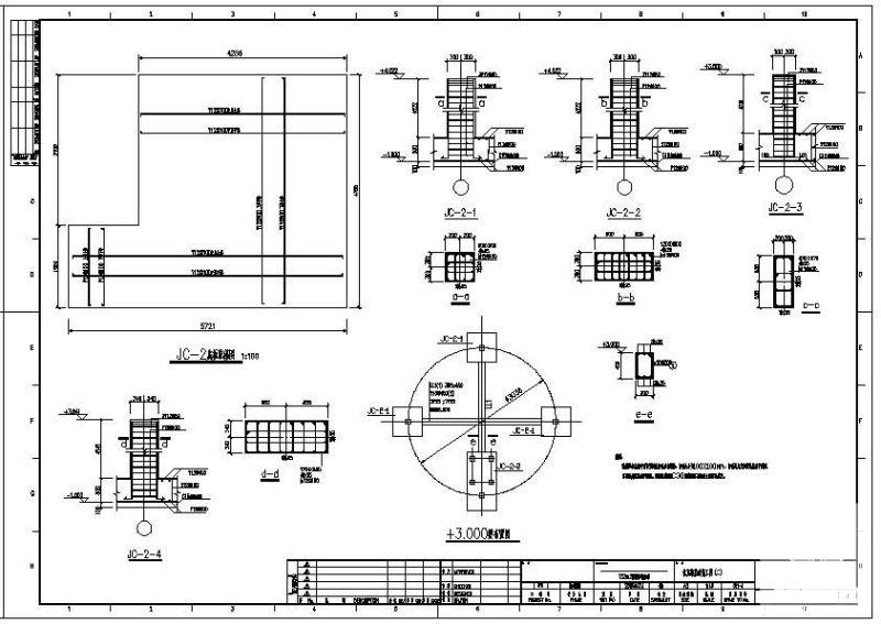
化灰机基础设计图纸cad平面布置图
- 发布时间:2024-01-02
- 评论次数:0
- 浏览次数:0
- 文件大小:0.41 MB
- 收藏次数:0
-
文件名称:
附件-996055057087708767.rar
相关下载
- 电厂灰库结构工程施工方案(塔式起重机)
- 码头CAD施工图纸(吊机基础钢筋布置图)
- 别墅基础设计图纸平面布置图
- 6#机事故保护油泵电机控制图纸cad平面布置图
- 单层混合结构起重机厂新厂房结构设计图纸(条形基础,7度抗震)(平面布置图)
- 小学食堂基础详图纸平面布置图
- 别墅基础图纸平面布置图
- 别墅基础详图纸平面布置图
- 煤机厂采暖平面CAD图纸
- 海钢厂合塔金化钢结构安装方案cad平面布置图
- 住宅楼基础详图平面布置图
- 空气、天然气、氮氢气联合压缩机基础结构CAD施工图纸(平面布置图)
- 300平板框压滤机基础图纸
- 卸煤机轨道混凝土基础CAD图纸
- 启闭机安装基础工程施工CAD图纸
- PH4510塔机基础详图纸cad
- 道路亮化基础设计CAD大样图
- 池一体化设备方案设计图纸平面布置图及系统图
- 内蒙电厂碎煤机室施工方案(基础底板)
- CBD项目车库基础平面布置图纸(详细设计CAD施工图纸)
全部评论
评论网友评论仅友表达个人看法,并不表明本站同意其观点,不得发布违反法律法规的内容!
