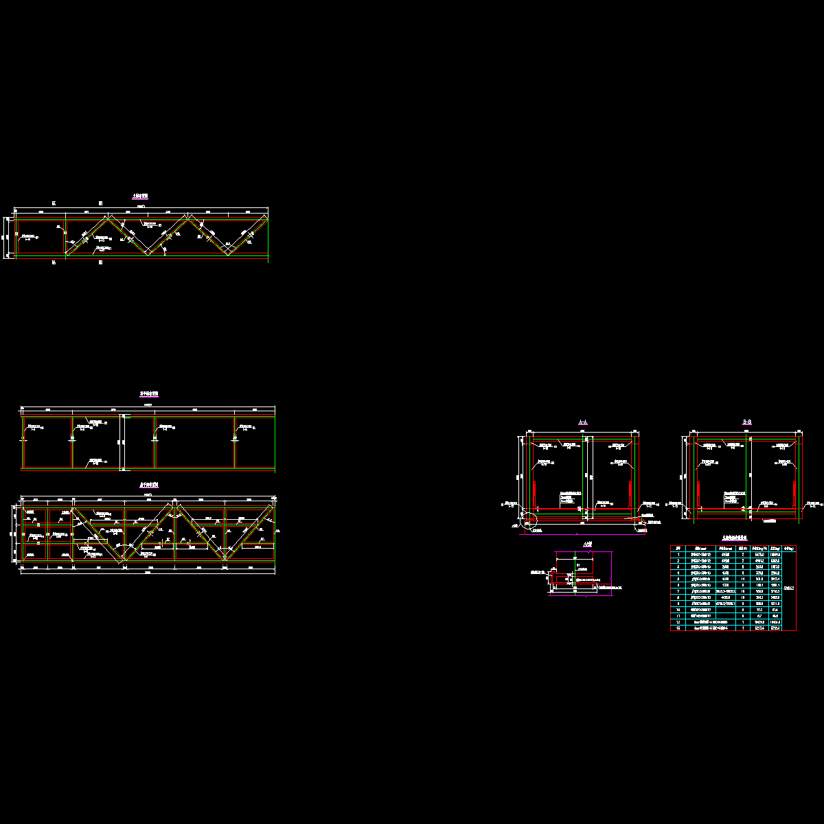
钢桁架结构人行天桥施工CAD大样图29张
- 发布时间:2024-01-02
- 评论次数:0
- 浏览次数:0
- 文件大小:3.46 MB
- 收藏次数:0
-
文件名称:
附件-995988797970970975.rar
相关下载
- 钢桁架结构商业街人行天桥结构初设图纸
- 钢桁架结构商业街人行天桥结构CAD图纸
- 钢桁架节点大样图纸
- 钢结构钢桁架节点大样图纸
- 钢框架钢制人行天桥结构CAD施工大样图
- 钢箱梁结构人行天桥施工CAD大样图成套(玻璃栏杆)
- 59m桁架人行天桥设计图纸
- 下承式钢桁架人行天桥施工CAD图纸44张(天梯花槽设计)
- 钢桁架结构CAD施工图纸
- 净跨71米人行天桥钢桁架梁设计图纸构造图及节点详图
- 钢桁架CAD图集
- 钢桁架结构布置详图纸2017
- 39套钢桁架结构节点
- 钢桁架结构皮带栈桥CAD图纸
- 钢桁架结构详细设计CAD图纸
- 钢桁架结构深化设计CAD图纸
- 钢桁架结构玻璃温室结构施工图纸
- 钢桁架煤栈桥结构施工方案大样图(CAD)
- 机场航站楼钢桁架屋面钢结构CAD施工大样图
- 32m钢桁架栈桥结构CAD施工大样图
全部评论
评论网友评论仅友表达个人看法,并不表明本站同意其观点,不得发布违反法律法规的内容!
