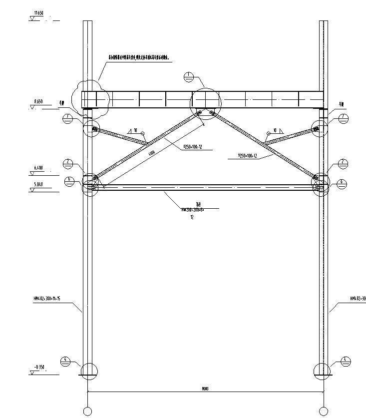
桁车吨位升级吊车梁加固施工方案大样图
- 发布时间:2021-12-09
- 评论次数:0
- 浏览次数:0
- 文件大小:0.46 MB
- 收藏次数:0
-
文件名称:
附件-996088900780066767.dwg
吊车梁施工方案下载
- 吊车梁加固设计说明
- 吊车梁车挡节点CAD详图纸
- 吊车梁加固结构CAD施工图纸.dwg
- 连续钢桁梁加固工程CAD设计图纸.dwg
- 带有大吨位吊车的重型钢结构工业厂房设计
- 三联跨门式刚架厂房带大吨位吊车(甲级院)(屋顶平面图)
- 12米实腹钢吊车梁车挡节点构造详细设计CAD图纸
- 特大桥钢桁梁吊装法运输与安装专项施工方案cad
- 办公楼加固施工方案(梁板加固)
- 混凝土柱吊车梁厂房结构施工方案大样图(CAD)
- 吊车梁详图纸.
- 吊车梁节点详图纸
- 吊车梁结构详图纸
- 吊车梁CAD详图纸
- 1-96m钢桁梁拼装架设施工方案(横移顶推法)(桥平面)
- 工程混凝土梁板加固施工方案
- 吊车梁节点详图纸2020
- 吊车梁详细设计CAD图纸
- 单轨吊车梁CAD节点图纸集
- 吊车梁节点构造CAD详图纸
全部评论
评论网友评论仅友表达个人看法,并不表明本站同意其观点,不得发布违反法律法规的内容!
