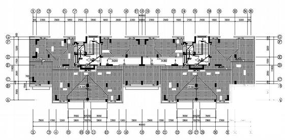
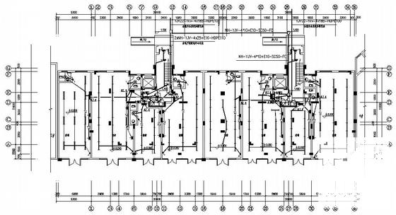
11层住宅楼小区电气设计CAD图纸(三级负荷)
- 发布时间:2022-10-15
- 评论次数:0
- 浏览次数:0
- 文件大小:1.12 MB
- 收藏次数:0
-
文件名称:
附件-995856770769570957500.rar
相关下载
- 小区15层住宅楼电气设计图纸(三级负荷).dwg
- 搬迁安置小区6层住宅楼电气设计CAD图纸(三级负荷)
- 6层住宅楼小区电气设计图纸(三级负荷)(供配电系统)
- 5层住宅楼小区水电施工图纸(三级负荷)
- 小区17层住宅楼强电施工图纸(三级负荷)
- 地上6层小区住宅楼电气CAD施工图纸(三级负荷)
- 5层住宅楼小区水电CAD施工图纸(三级负荷)
- 小区地上5层住宅楼电气CAD施工图纸(三级负荷)
- 5层住宅楼电气设计CAD图纸(三级负荷)(综合布线系统)
- 小区地上6层住宅楼电气设计图纸(三级负荷,第三类防雷)
- 高层酒店电气设计图纸(二类防雷建筑,二级负荷,三级负荷)
- 低层住宅楼电气设计(三级负荷,第三类防雷).dwg
- 5层住宅楼小区电气CAD施工图纸(三级负荷)(防雷接地)
- 6层小区住宅楼强弱电CAD施工图纸(三级负荷)(接线系统图)
- 上6层住宅楼小区电气CAD施工图纸(三级负荷)(防雷接地系统)
- 小区6层住宅楼电气CAD施工图纸(三级负荷)(防雷接地系统)
- 多层商住楼电气设计CAD图纸(三级负荷)
- 广场景观电气设计CAD施工图纸(三级负荷)
- 车站电气设计CAD图纸(三级负荷)(防雷接地系统)
- 庭院景观电气设计CAD施工图纸(三级负荷)
全部评论
评论网友评论仅友表达个人看法,并不表明本站同意其观点,不得发布违反法律法规的内容!
