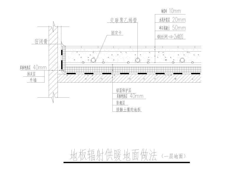
3层度假村餐厅采暖系统设计施工图纸
- 发布时间:2021-12-09
- 评论次数:0
- 浏览次数:0
- 文件大小:3.39 MB
- 收藏次数:0
- 
								文件名称: 附件-996068099596078790.dwg 附件-996068099596078790.dwg
								餐厅设计施工图下载
							
						- 3层度假村餐厅采暖CAD施工图纸
- 大型旅游度假村生态温棚餐厅建筑及结构CAD施工图纸(结构为钢结构)
- 大型旅游度假村生态温棚餐厅建筑及结构CAD施工图纸(结构为钢结构)
- 餐厅水暖设计CAD施工图纸
- 度假村内庭环境设计CAD图纸
- 度假村路灯安装图纸
- 度假村独立别墅电气设计
- 度假村仿古建筑设计.dwg
- 2层度假村别墅电气设计.dwg
- 养生度假村概念方案文本
- 度假村整体规划_CAD
- 温泉度假村规划方案_CAD
- 度假村别墅建筑CAD施工图纸
- 度假村装修给排水CAD施工图纸
- 中学餐厅给排水设计图纸
- 餐厅空调平面设计CAD图纸
- 小型别墅采暖系统设计施工图纸
- 多层科研建筑采暖系统设计施工图纸
- 多层商场建筑采暖系统设计施工图纸
- 洗浴中心采暖系统设计施工图纸
全部评论
						
							评论网友评论仅友表达个人看法,并不表明本站同意其观点,不得发布违反法律法规的内容!
						
						
 
	              	 
	              	 
	              	 
	              	