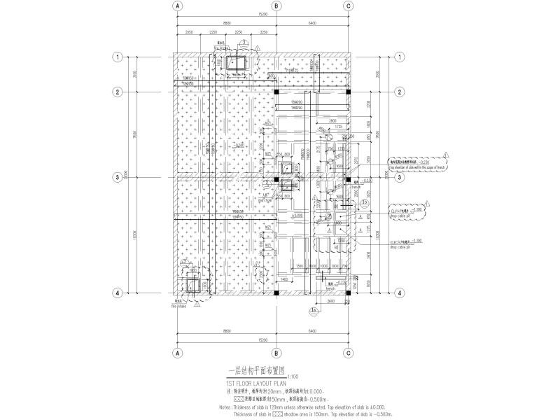
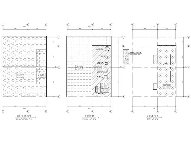
单层框架结构消防泵房及水池结施2019
- 发布时间:2021-12-08
- 评论次数:0
- 浏览次数:0
- 文件大小:4.63 MB
- 收藏次数:0
-
文件名称:
附件-996068908595590598.zip
消防水池及泵房下载
- 单层框架结构消防水池水泵房结构施工图纸
- 地下3层框架结构污水处理站结施2019
- 2层9栋框架结构坡屋面宾馆结施施工图纸2019
- 2层框架结构公用总配电房结施施工图纸2019
- 单层混凝土泵房及水池结构施工图纸
- 消防水池及泵房通用大样图纸2020
- 下消防水池及泵房配筋CAD图纸
- 钢筋混凝土结构消防水池结施施工大样图2016
- 消防水池及框架结构泵房结构CAD施工图纸(7度抗震)
- 消防水池及泵房框架结构CAD施工大样图
- 单层门式刚架结构交易市场结施CAD施工大样图2019
- 单层门式刚架结构药品仓库结施2017
- 单层门式刚架结构物流仓库结施2017
- 单层钢框架结构危险品储藏间结施2015
- 单层框架结构球场配套用房结施CAD施工图纸2020
- 消防水池施工全CAD图纸2019(建筑,结构)
- 门刚结构汽车生产辅房结施2019(建)
- 27层剪力墙结构住宅楼结施施工图纸2019
- 21层框剪结构行政后勤楼结施施工图纸2019
- 27层部分框支剪力墙结构住宅结施2019_CAD
全部评论
评论网友评论仅友表达个人看法,并不表明本站同意其观点,不得发布违反法律法规的内容!
