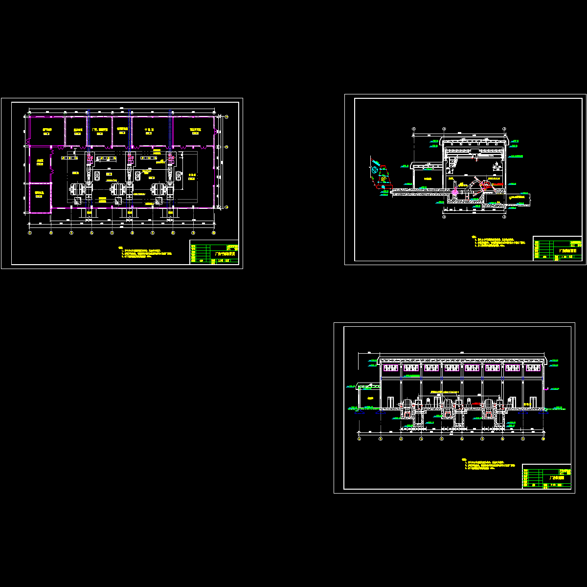
引水式电站厂房工程CAD施工图纸.dwg
- 发布时间:2024-01-02
- 评论次数:0
- 浏览次数:0
- 文件大小:6.21 MB
- 收藏次数:0
-
文件名称:
附件-995788067959507775.zip
相关下载
- 径流引水式电站大坝工程施工CAD图纸
- 径流引水式电站大坝工程施工CAD图纸
- 引水式水电站施工测量方案
- 河床式电站主厂房工程施工图纸
- 河床式电站主厂房工程施工CAD图纸
- 电站引水洞及引水钢管CAD施工图纸.dwg
- 径流引水式电站大坝工程CAD施工图纸.dwg
- 水电站竣工图纸(压力管引水隧洞).dwg
- 电站地下电站引水隧洞开挖支护CAD图纸
- 水电站立式机组蜗壳式引水室配筋图纸
- 水电站厂房枢纽工程施工CAD图纸
- 河床式水电站厂房综合布置图纸
- 一套小二型引水电站初步设计CAD图纸
- 引水渠梯级电站电气设计探讨(电气主接线).doc
- 坝后式水电站设计全套图纸.dwg
- 电站大坝和厂房设计图纸.dwg
- 电站厂房结构CAD施工图纸.dwg
- 电站厂房平台结构设计CAD图纸.dwg
- 小电站厂房初步设计图纸.dwg
- 水电站厂房结构布置图纸.dwg
全部评论
评论网友评论仅友表达个人看法,并不表明本站同意其观点,不得发布违反法律法规的内容!
