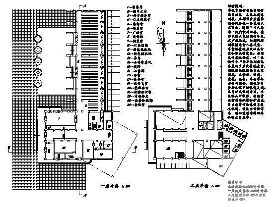
3层二级长途公共汽车站设计方案
- 发布时间:2021-12-08
- 评论次数:0
- 浏览次数:0
- 文件大小:2.44 MB
- 收藏次数:0
-
文件名称:
附件-995798869965789685.rar
汽车站设计方案下载
- 3层CAD二级长途公共汽车站设计方案
- 长途公共汽车站设计方案(总平面图)
- 城市3层长途客运站建筑设计方案.dwg
- 长途汽车客运站设计
- 长途客运站水暖设计图纸.dwg
- 小城市长途汽车客运站建筑设计——以江都长途汽车客运东站为例.pdf
- 2层网吧电气设计方案设计CAD图纸(二级负荷)
- 32759平方米长途汽车客运站建筑设计图纸
- 4层海长途客运站建筑施工图纸
- 框架结构6层长途客运站建筑方案设计CAD图纸
- 长途客运南站设计建筑方案设计初设图纸(CAD)
- 长途客运站建筑设计施工方案图纸_CAD
- 乐清长途汽车运输总公司建筑方案设计初设图纸(CAD)
- 第二长途电信枢纽工程结构设计.pdf
- 长途汽车客运站建筑设计讲义_56p.pdf
- 4层长途客运站给排水及采暖图纸(总平面布置图)
- 院二级泵站设计图纸
- 二级公路工程施工方案
- 二级公路(桥梁)施工组织设计
- 副食加工园区冷库电气图纸(二级负荷)
全部评论
评论网友评论仅友表达个人看法,并不表明本站同意其观点,不得发布违反法律法规的内容!
