您当前位置:首页 »  其他文档 » 其他资料 »  院二级泵站设计图纸

院二级泵站设计图纸

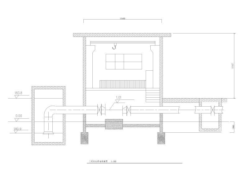
该附件为 南昌某院二级泵站设计CAD图纸

内容展示:
二级送水泵站平面图.jpg
二级送水泵站剖面图.jpg
二级泵站工艺图.jpg

以下是附件的其中一部分截图,共3张,您也可以 搜索 更多您想要的资源
  • 二级泵站设计图纸 - 1
    二级泵站设计图纸 - 1
  • 二级泵站设计图纸 - 2
    二级泵站设计图纸 - 2
  • 二级泵站设计图纸 - 3
    二级泵站设计图纸 - 3
以上是部分截图,请下载附件后查看完整高清内容
网站首页  | 
本站所有内容均由网友自主分享,仅供学习和参考,如有侵权内容或者违法行为,请及时联系站长删除。