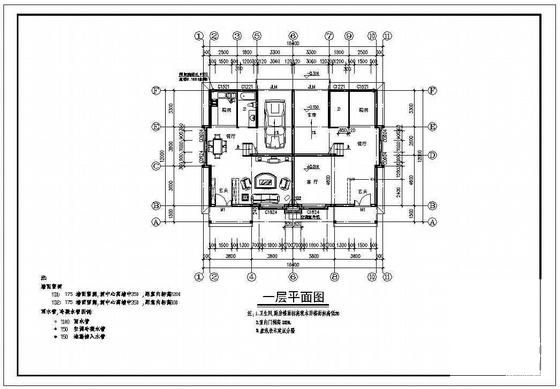
2层带阁楼双拼别墅建筑施工图纸
- 发布时间:2021-12-08
- 评论次数:0
- 浏览次数:0
- 文件大小:0.3 MB
- 收藏次数:0
-
文件名称:
附件-995898879695959605867.rar
双拼别墅建筑图纸下载
- 2层带阁楼双拼别墅建筑施工CAD图纸
- 双拼别墅建筑CAD施工图纸
- 双拼别墅建筑CAD施工图纸
- 双拼别墅施工建筑CAD图纸
- 4层带阁楼双拼别墅户型图纸(北入口).dwg
- 4层带阁楼双拼别墅户型图纸(南入口).dwg
- 花园3层双拼别墅建筑CAD图纸扩初图纸(双拼别墅)
- 4层双拼别墅建筑CAD图纸
- 3层双拼别墅建筑CAD图纸
- 3层双拼别墅建筑方案_CAD
- 3层西班牙风格双拼别墅建筑施工图纸
- 3层双拼别墅建筑施工套CAD图纸
- 3层双拼别墅建筑施工套CAD图纸
- 2层双拼别墅建筑CAD施工图纸
- 3层高档双拼别墅建筑施工CAD图纸
- 3层双拼别墅建筑CAD施工图纸
- 3层双拼别墅建筑CAD施工图纸
- 3层双拼别墅建筑CAD施工图纸
- 3层双拼别墅建筑施工CAD图纸
- 2层欧式双拼别墅建筑施工CAD图纸
全部评论
评论网友评论仅友表达个人看法,并不表明本站同意其观点,不得发布违反法律法规的内容!
