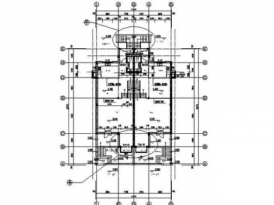
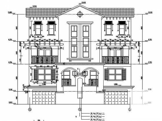
3层西班牙风格双拼别墅建筑施工图纸
- 发布时间:2021-12-09
- 评论次数:0
- 浏览次数:0
- 文件大小:0.71 MB
- 收藏次数:0
-
文件名称:
附件-996079587090765887.rar
双拼别墅建筑图纸下载
- 3层西班牙风格双拼别墅建筑施工CAD图纸
- 3层西班牙风格双拼别墅建筑设计施工CAD图纸(知名设计院)
- 3层西班牙风格双拼别墅建筑方案设计CAD初设图纸
- 3层西班牙风格别墅建筑施工图纸
- 西班牙风格2层别墅建筑施工CAD图纸
- 3层西班牙风格别墅建筑施工CAD图纸
- 3层325平西班牙风格联排别墅建筑设计施工CAD图纸
- 3层西班牙风格别墅建筑施工CAD图纸(有架空层)
- 西班牙风格节能型2层别墅建筑施工套CAD图纸
- 3层西班牙风格联排别墅建筑施工CAD图纸
- 3层西班牙风格联排别墅建筑施工CAD图纸
- 3层西班牙风格独栋别墅建筑扩初CAD图纸(342平方米)
- 3层西班牙风格私人别墅建筑设计方案
- 湖别墅区2层西班牙式独栋别墅建筑施工CAD图纸(欧陆风格)
- 3层西班牙双拼别墅建筑方案设计CAD初设图纸(390平方米)
- 3层中海风格豪华双拼别墅建筑施工CAD图纸
- 小区2层双拼新古典风格别墅建筑施工CAD图纸
- 西班牙风格商业平面图纸设计
- 双拼别墅建筑CAD施工图纸
- 双拼别墅建筑CAD施工图纸
全部评论
评论网友评论仅友表达个人看法,并不表明本站同意其观点,不得发布违反法律法规的内容!
