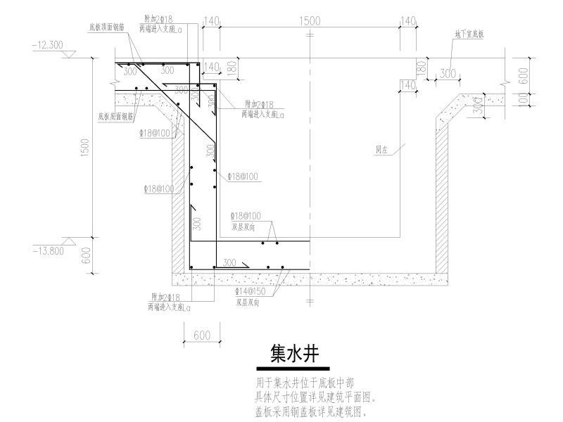
3层地下室车站备班楼结构施工大样图
- 发布时间:2021-12-08
- 评论次数:0
- 浏览次数:0
- 文件大小:8.79 MB
- 收藏次数:0
-
文件名称:
附件-996976055896888588.dwg
地下室结构施工下载
- 启备变CAD图纸
- 4层9000平米银行灾备中心电气施工大样图
- 3层6班幼儿园建筑施工CAD大样图_框架结构
- 火车站广场地下室电气施工图纸
- 框架地下室结构施工大样图
- 24班4层框架结构小学楼结构施工图纸.
- 高层住宅楼大型地下室结构施工大样图(CAD)
- 商住楼人防地下室结构施工大样图.
- 水泥散装包装及装车站台结构设计施工大样图
- 地铁车站深基坑端头井围护结构CAD施工大样图
- 明挖车站主体结构施工方案(岛式车站).doc
- 铁车站挑高段内车站主体端跨结构施工方案.doc
- 4层12班幼儿园建筑施工CAD大样图
- 钢桁架备煤栈桥结构设计施工图纸(4张)
- 钢桁架备煤栈桥结构设计CAD施工图纸
- 3层现代9班框架结构幼儿园建筑施工大样图2018
- 3层框架结构18班幼儿园建筑施工大样图2016
- 3层框架结构办公楼结构CAD施工大样图(带地下室)
- 水泵控制原理CAD图纸(一用一备)
- 水泵控制原理CAD图纸(两用一备)
全部评论
评论网友评论仅友表达个人看法,并不表明本站同意其观点,不得发布违反法律法规的内容!
