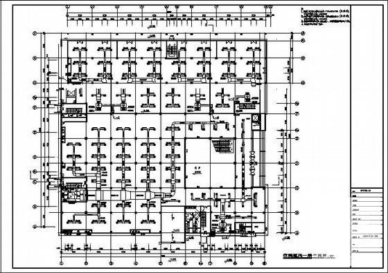
电影综合大厦暖通图纸
- 发布时间:2021-12-07
- 评论次数:0
- 浏览次数:0
- 文件大小:1.08 MB
- 收藏次数:0
- 
								文件名称: 附件-996979958597875556.rar 附件-996979958597875556.rar
								相关下载
							
						- 国内电影院暖通CAD施工图纸
- 电影院暖通空调排烟CAD施工图纸
- 电影院暖通设计CAD图纸
- 电影院暖通施工CAD图纸(完整版)
- 地铁大厦暖通施工图纸.
- 书店大厦暖通CAD大样图
- 2层电影院暖通设计施工大样图
- 电影院暖通空调排烟系统设计CAD施工大样图
- 大厦室外管网综合规划
- 20层大厦暖通设计CAD施工图纸
- 大厦采暖通风空调图纸(设计说明).dwg
- 大厦暖通中央空调设计图纸.dwg
- 金融大厦暖通空调设计施工图纸.dwg
- 电影院播放电影立体声系统CAD图纸
- 综合大厦消防设计CAD图纸
- 国内大厦电气综合系统CAD图纸
- 外贸大厦综合布线施工CAD图纸
- 大厦综合布线设计图纸.dwg
- 大厦暖通工程施工方案(风机盘管)
- 上18层大厦暖通大样图.dwg
全部评论
						
							评论网友评论仅友表达个人看法,并不表明本站同意其观点,不得发布违反法律法规的内容!
						
						
 
	              	 
	              	 
	              	