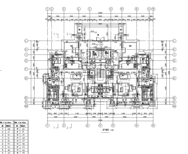
18层新中式风一梯两户132平米中国住宅户型图纸设计
- 发布时间:2021-12-07
- 评论次数:0
- 浏览次数:0
- 文件大小:3.08 MB
- 收藏次数:0
-
文件名称:
附件-996959869507505897.dwg
一梯两户户型设计下载
- 11层新中式风一梯两户142平米中国住宅户型图纸设计
- 11层新中式风一梯两户128平米中国住宅户型图纸设计
- 18层新中式风一梯两户140平米中国住宅户型图纸设计
- 知名企业新中式一梯两户117平米中国户型图纸设计
- 18层新中式风1梯4户124+108平米中国住宅户型施工图纸
- 33层新中式风1梯4户131+98平米中国住宅户型施工图纸
- 33层新中式风1梯4户140+114平米中国住宅户型施工图纸
- 新古典风保利户型165-115-140平米中国户型CAD图纸设计
- 新古典风保利户型140-140-115平米中国户型CAD图纸设计
- 新古典风保利户型120-120-90平米中国户型图纸设计_cad
- 新古典风保利户型140-125-90平米中国户型图纸设计_cad平面图
- 一梯两户住宅户型设计图纸(面积100至110平米中国).dwg
- 新中式风异形柱框架结构住宅户型大样图cad平面图
- 华南地区新中式1梯4户136+97平米中国住宅户型大样图
- 华南地区新中式1梯4户128+97平米中国住宅户型大样图
- 新中式风高端生态住宅景观植物施工图纸平面图
- 新中式风高端生态住宅景观结构施工图纸节点详图
- 一梯两户户型
- 现代风保利户型140-125-90平米中国户型图纸设计.dwg
- 新亚洲风保利户型165-115-140平米中国户型cad图纸设计
全部评论
评论网友评论仅友表达个人看法,并不表明本站同意其观点,不得发布违反法律法规的内容!
