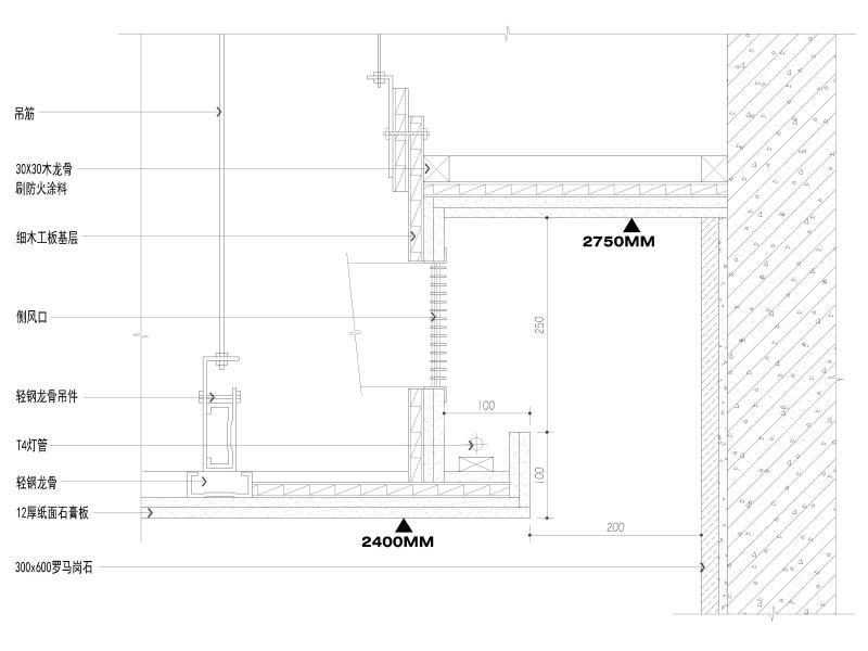
室内空调送风节点大样图纸
- 发布时间:2021-12-06
- 评论次数:0
- 浏览次数:0
- 文件大小:3.07 MB
- 收藏次数:0
- 
								文件名称: 附件-996979089065875687.zip 附件-996979089065875687.zip
								室内节点大样图下载
							
						- 高层科研楼空调通风系统设计CAD施工大样图(正压送风系统)
- 建筑室内节点大样CAD详图纸
- 电梯前室正压送风口平面大样
- 空调室内机CAD图纸块
- 环保空调室内布置CAD图纸
- 服务区VRV空调CAD施工图纸_室内外机安装大样图
- 空调外挂节点大样CAD图纸
- 空调外挂节点大样CAD图纸
- 候车室地板送风空调方案设计施工图纸
- 多层办公楼空调通风排烟加压送风系统设计施工图纸
- 国内25层综合楼暖通空调设计CAD施工图纸(机械加压送风)
- 体育训练馆空调设计图纸(置换送风)
- 32层商业住宅楼暖通空调设计CAD施工图纸(正压送风系统)
- 19层层国际大酒店空调施工改造图纸(加压送风地下室)
- 沐足按摩城空调平面CAD施工图纸(散流器送风)
- 保龄球馆空调设计CAD施工图纸(散流器送风)
- 3层影剧院空调设计CAD施工图纸(座椅送风)
- 剧场剧院建筑空调通风系统设计施工CAD图纸(座椅送风顶回风)
- 候车室地板送风空调方案设计施工图纸,共3张.dwg
- 多层综合建筑空调系统设计施工CAD图纸(座椅送风)
全部评论
						
							评论网友评论仅友表达个人看法,并不表明本站同意其观点,不得发布违反法律法规的内容!
						
						
 
	              	 
	              	 
	              	 
	              	