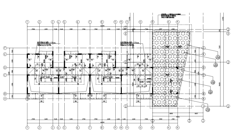
4层叠拼别墅结构施工方案图纸含建筑图纸
- 发布时间:2021-12-06
- 评论次数:0
- 浏览次数:0
- 文件大小:16.65 MB
- 收藏次数:0
-
文件名称:
附件-996996559799058685.rar
别墅建筑施工图纸下载
- 4层叠拼联排别墅混凝土结构施工方案大样图含建筑
- 砖混结构4层叠拼别墅住宅楼建筑方案设计CAD图纸
- 4层叠拼住宅带商业结构施工方案图纸
- 法式风格4层叠拼别墅设计施工CAD图纸
- 180平米4层叠拼别墅户型图纸设计
- 4层叠拼别墅户型平面图纸(170、190平方米)
- 4层叠拼别墅户型图纸(带阁楼和屋顶花园).dwg
- 5层叠拼多层别墅建筑施工CAD图纸
- 5层叠拼别墅户型建筑CAD图纸(170、190平方米)
- 高档4层叠拼住宅框架结构施工方案图纸CAD.dwg
- 4层叠拼别墅户型平面图纸(南梯188、186平方米)
- 4层叠拼别墅户型平面图纸(170、210平方米).dwg
- 4层叠拼别墅户型平面图纸(南梯188、186平方米).dwg
- 5层叠拼别墅户型平面图纸(大户型).dwg
- 5层叠拼别墅户型平面图纸(120、140、160、180).dwg
- 5层叠拼别墅户型平面CAD图纸(170、190平方米)
- 5层叠拼别墅户型平面CAD图纸(192、166平方米)
- 多层叠拼洋房施工方案图纸CAD平面图
- 5层叠拼别墅户型建筑CAD图纸(板式、192、166平方米)
- 4层联排别墅商业组合结构施工方案图纸含建筑图纸
全部评论
评论网友评论仅友表达个人看法,并不表明本站同意其观点,不得发布违反法律法规的内容!
