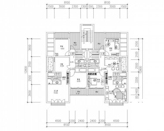
4层叠拼别墅户型平面图纸(170、190平方米)
- 发布时间:2023-01-18
- 评论次数:0
- 浏览次数:0
- 文件大小:0.35 MB
- 收藏次数:0
-
文件名称:
附件-995886705678998988979.rar
相关下载
- 5层叠拼别墅户型平面CAD图纸(170、190平方米)
- 4层叠拼别墅户型平面图纸(170、210平方米).dwg
- 5层叠拼别墅户型建筑CAD图纸(170、190平方米)
- 170平米3层叠加别墅户型设计
- 5层叠拼别墅户型平面图纸(大户型).dwg
- 180平米4层叠拼别墅户型图纸设计
- 4层叠拼别墅户型图纸(带阁楼和屋顶花园).dwg
- 5层叠拼别墅户型平面图纸(120、140、160、180).dwg
- 5层叠拼别墅户型平面CAD图纸(192、166平方米)
- 4层叠拼别墅户型平面图纸(南梯188、186平方米)
- 4层叠拼别墅户型平面图纸(南梯188、186平方米).dwg
- 黄金海岸多层叠拼户型平面图纸
- 4层叠拼别墅结构施工方案图纸含建筑图纸
- 法式风格4层叠拼别墅设计施工CAD图纸
- 叠拼别墅首层户型CAD图纸
- 5层叠拼别墅户型建筑CAD图纸(板式、192、166平方米)
- 砖混结构4层叠拼别墅住宅楼建筑方案设计CAD图纸
- 4层叠拼联排别墅混凝土结构施工方案大样图含建筑
- 35+110平米4层叠加别墅户型图纸设计
- 多层洋房170户型平面图纸_cad
全部评论
评论网友评论仅友表达个人看法,并不表明本站同意其观点,不得发布违反法律法规的内容!
