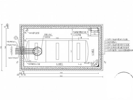
5吨地下油罐施工CAD图纸
- 发布时间:2023-12-28
- 评论次数:0
- 浏览次数:0
- 文件大小:0.27 MB
- 收藏次数:0
-
文件名称:
附件-995798575857657095.rar
相关下载
- 5吨地下油罐CAD施工大样图
- 大型油罐基础施工图纸.
- 3000立方油罐基础CAD图纸
- 地下直埋卧油罐20立方三台加油站工艺设计施工图纸.dwg
- 油罐设备房结构CAD施工图纸
- 油罐设备房结构CAD施工图纸.dwg
- 油罐防腐工程施工组织设计
- 油罐工程施工组织设计
- 油库油罐基础作法节点构造详图纸
- 油库油罐基础作法节点构造详细设计CAD图纸
- 燃油系统油箱油罐安装CAD详图纸
- 燃油供应系统储油罐大样CAD图纸
- 3000立方油罐基础设计图纸.dwg
- 3000立方油罐基础设计图纸cad
- 储油罐基础节点构造详图纸cad
- 5000立方米拱顶油罐结构施工图纸
- 200立方立式金属储油罐结构施工图纸
- 200立方立式金属储油罐CAD施工图纸
- 100立方拱顶油罐CAD施工图纸.dwg
- 油罐区储罐防腐保温工程施工方案(干法喷砂除锈)
全部评论
评论网友评论仅友表达个人看法,并不表明本站同意其观点,不得发布违反法律法规的内容!
