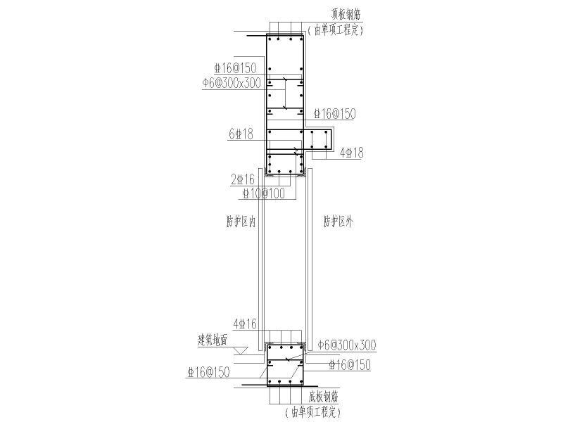
负3层地下室人防结构施工方案图纸
- 发布时间:2021-12-06
- 评论次数:0
- 浏览次数:0
- 文件大小:2.07 MB
- 收藏次数:0
-
文件名称:
附件-996505656957878098.rar
地下室人防施工方案下载
- 人防地下室大样
- 大型人防地下室_CAD
- 商业广场人防地下室结构CAD施工方案图纸2015
- 中心人防地下室给排水设计CAD施工方案图纸(平时、战时)
- 住宅小区地下室给排水CAD施工方案图纸(人防)
- 住宅小区人防地下室暖通CAD施工方案图纸
- 商业大厦地下室人防设备安装工程施工方案
- 地下室人防设计施工方案图纸及设计说明CAD
- 小区人防地下室工程结构施工大样图(人防)
- 防空地下室人防电气施工图纸(人防大样)
- 地下室人防结构安全设计施工图纸
- 小区地下室人防建筑CAD施工图纸
- 地下室人防通风设计CAD施工图纸
- 小区地下室人防建筑施工CAD图纸.dwg
- 小区地下室人防建筑施工图纸.dwg
- 人防地下室竖向承载结构设计方案.pdf
- 框架人防地下室结构设计方案CAD图纸
- 单建式人防地下室结构设计方案图纸
- 地铁站地下室人防大样2016
- 人防地下室节点详图纸
全部评论
评论网友评论仅友表达个人看法,并不表明本站同意其观点,不得发布违反法律法规的内容!
