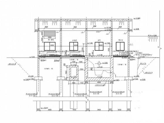
排涝泵站拆建工程施工图纸
- 发布时间:2021-12-05
- 评论次数:0
- 浏览次数:0
- 文件大小:1.25 MB
- 收藏次数:0
-
文件名称:
附件-995860985606695585508.rar
泵站工程施工下载
- 排涝泵站拆建工程CAD施工图纸(总)(pvc排水管)
- 排涝泵站拆建工程全套cad施工图纸和平面图,拦污栅详图
- 排涝泵站电气CAD施工图纸
- 排涝泵站工程施工图纸(进水池挡土墙)
- 小型轴流泵排涝泵站工程施工大样图
- 排涝泵站涵闸工程CAD施工图纸.dwg
- 排涝泵站电气CAD施工图纸(第三类防雷)
- 排涝站施工图纸
- 排涝站施工CAD图纸
- 水系恢复泵站工程施工图纸
- 泵站自排涵闸改造工程施工CAD图纸
- 污水提升泵站工程施工大样图
- 排涝站水泵布置初设图纸
- 排涝站CAD施工图纸.dwg
- 公司拆建工程提取车间结构施工图纸
- 电灌站拆建全套竣工CAD图纸.dwg
- 电灌站拆建全套竣工CAD图纸
- 防洪闸枢纽工程CAD施工图纸(防洪闸排涝泵站交通桥三位一体).dwg
- 排涝站竖井排架设计CAD图纸
- 排涝沟及管道开挖结构节点CAD详图纸
全部评论
评论网友评论仅友表达个人看法,并不表明本站同意其观点,不得发布违反法律法规的内容!
