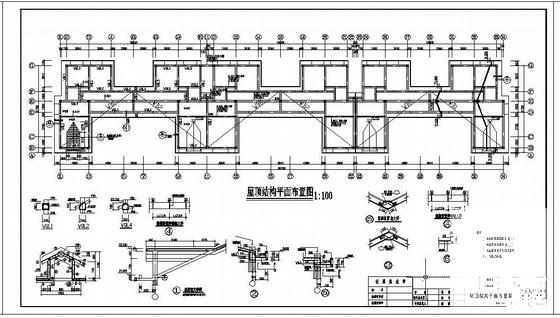
7层小区砖混28#楼住宅结构施工大样图
- 发布时间:2021-12-05
- 评论次数:0
- 浏览次数:0
- 文件大小:1.1 MB
- 收藏次数:0
-
文件名称:
附件-995879570950707878989.rar
住宅结构大样下载
- 7层小区砖混28#楼住宅结构CAD施工大样图
- 7层小区砖混32#楼住宅结构施工大样图
- 7层小区砖混33#楼住宅结构CAD施工大样图
- 7层小区砖混30#楼住宅结构CAD施工大样图
- 7层小区砖混27#楼住宅结构CAD施工大样图
- 7层小区砖混40#楼住宅结构CAD施工大样图
- 7层小区砖混35#36#38#39#楼住宅结构CAD施工大样图
- 砖混结构小区6层住宅楼建筑施工CAD图纸
- 小区6层住宅楼建筑施工CAD图纸(砖混结构)
- 6层砖混结构住宅楼建筑结构施工大样图
- 住宅楼小区6层砖混住宅楼结构设计施工图纸
- 小区6层住宅楼建筑方案设计CAD图纸(砖混结构)
- 砖混结构小区4、5号住宅楼建筑方案设计CAD图纸
- 5层砖混住宅楼结构CAD施工大样图
- 小区6层砖混结构住宅楼电气CAD图纸(12#楼,普通多层住宅建筑)
- 5层砖混住宅楼结构总说明
- 砖混住宅结构CAD图纸
- 安置小区4套砖混住宅结构CAD施工图纸(条形基础)
- 小区6层砖混住宅(B栋)建筑结构CAD施工图纸
- 6层安置小区4套砖混住宅结构施工CAD图纸
全部评论
评论网友评论仅友表达个人看法,并不表明本站同意其观点,不得发布违反法律法规的内容!
