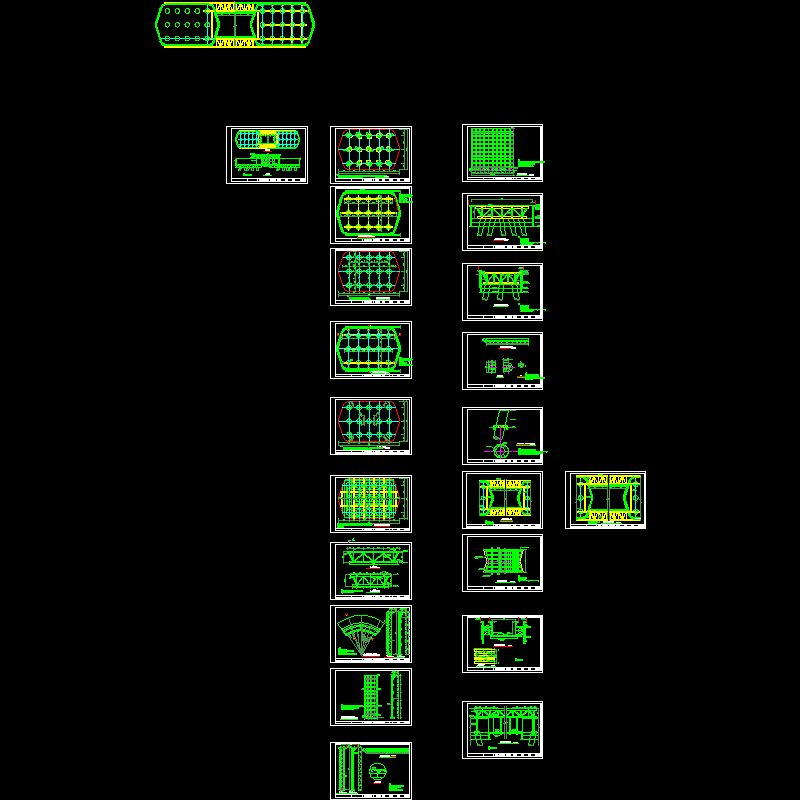
长江大桥100m跨钢套箱模板设计CAD图纸(20张知名大院)
- 发布时间:2023-12-28
- 评论次数:0
- 浏览次数:0
- 文件大小:3.66 MB
- 收藏次数:0
-
文件名称:
附件-995798860009779577.rar
相关下载
- 桥墩钢套箱模板图纸CAD图纸(高强螺栓)
- 70m跨钢套箱设计CAD施工图纸(17张)
- 桥梁钢套箱构造CAD图纸
- 跨江大桥4.8m~15.575m高墩柱模板图纸(62张知名大院).dwg
- 特大桥水上承台钢套箱设计图纸
- 水中承台钢套箱CAD设计图纸.dwg
- 跨径30米连续箱梁通用CAD图纸145张(5套不同斜交知名大院)
- 主跨29.45m钢箱梁天桥CAD施工图纸22张(知名大院)
- 48m连续箱梁桥菱形挂篮设计图纸(46张知名大院).
- 著名跨海大桥航道桥防撞套箱设计图纸52页(知名大院).
- 桥梁承台钢套箱构造CAD图纸
- 长江大桥箱梁底模CAD图纸
- 现浇箱梁菱形挂篮全套施工图纸(24张知名大院).
- 25m装配式预应力混凝土箱梁通用图纸(知名大院).dwg
- 高速公路盖板涵及双孔箱涵图纸33张(知名大院).
- 知名设计大院超高层户型设计_cad
- 高速公路被交路上跨分离立交及人行天桥通用图纸(知名大院变高度箱梁).dwg
- 特大桥水上承台钢套箱设计CAD图纸(平面布置图)
- 长江大桥桥墩基础施工平台及钢吊箱围堰CAD施工图纸71张(著名大院).dwg
- 国道三跨预应力后张小箱梁桥CAD施工方案图纸设计(知名大院)
全部评论
评论网友评论仅友表达个人看法,并不表明本站同意其观点,不得发布违反法律法规的内容!
