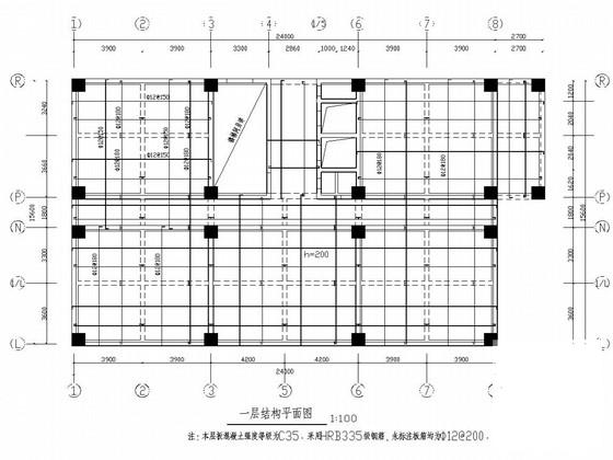
13层框架剪力墙结构宾馆结构施工图纸
- 发布时间:2021-12-05
- 评论次数:0
- 浏览次数:0
- 文件大小:0.98 MB
- 收藏次数:0
- 
								文件名称: 附件-995888986596888757769.rar 附件-995888986596888757769.rar
								框架剪力墙结构图纸下载
							
						- 异型柱框架剪力墙结构
- 14层框架剪力墙结构住宅结构CAD施工图纸(裙房框架)
- 公司高层框架-剪力墙结构施工图纸
- 框架剪力墙住宅结构CAD施工图纸
- 框架剪力墙住宅部分结构CAD图纸
- 框架剪力墙住宅结构CAD图纸
- 19层框架剪力墙结构CAD图纸
- 21层框架剪力墙结构CAD图纸
- 框架剪力墙筒体地下结构CAD图纸
- 框架-剪力墙结构全套CAD施工图纸
- 11层框架剪力墙结构CAD图纸
- 异型柱框架剪力墙结构CAD图纸
- 框架剪力墙结构节点大样图纸(CAD)
- 混凝土框架剪力墙结构大样图
- 框架-剪力墙结构设计总说明
- 框架剪力墙结构设计说明
- 框架剪力墙结构设计说明
- 框架剪力墙结构设计说明
- 框架剪力墙结构设计说明
- 框架剪力墙结构设计说明
全部评论
						
							评论网友评论仅友表达个人看法,并不表明本站同意其观点,不得发布违反法律法规的内容!
						
						
 
	              	 
	              	 
	              	 
	              	 
	              	