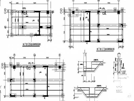
1层展览中心结构施工图纸
- 发布时间:2021-12-05
- 评论次数:0
- 浏览次数:0
- 文件大小:4.87 MB
- 收藏次数:0
- 
								文件名称: 附件-995877985797876878650.rar 附件-995877985797876878650.rar
								展览施工图下载
							
						- 展览中心电气CAD图纸
- 展览中心采暖CAD施工图纸
- 展览中心结构CAD施工图纸
- 展览中心电气照明CAD图纸
- 现代国际展览中心结构设计
- 贸易展览中心大空间消防设计图纸
- 40层展览中心宾馆扩初CAD图纸
- CAD会展展览中心给排水消防设计
- 国际会议展览中心张弦结构设计施工图纸
- 国际会议展览中心大跨度钢结构设计
- xx国际展览中心结构设计书(幻灯片)
- 常熟市展览中心结构设计.pdf
- 国内展览馆综合楼展示中心结构设计
- 国际会议展览中心上部钢结构设计
- 国际会议展览中心分展厅结构设计
- 国际展览中心结构设计讲稿PPT
- 6层国际会议展览中心建筑施工CAD图纸
- 国际会议展览中心改造电气施工图纸cad
- 4层展览中心电气施工大样图(2016)
- 国际会议展览中心张弦结构设计CAD施工图纸
全部评论
						
							评论网友评论仅友表达个人看法,并不表明本站同意其观点,不得发布违反法律法规的内容!
						
						
 
	              	 
	              	 
	              	