admin
|
退出
|
登录
|
注册
|
0
积分
|
赚取积分
|
VIP领取积分
|
帮助中心
|
首页
【知石网】是一个专业资料分享学习平台,本站提供大量施工技术文档和设计下载。
首页
施工图纸
施工方案
施工组织
施工交底
合同表格
建筑结构
节点详图
毕业设计
平面图纸
景观设计
电气知识
环保知识
您当前位置:
首页
»
其他文档
»
其他资料
»
商场空调设计CAD图纸
商场空调设计CAD图纸
资料简介
赚取积分
搜索更多资源
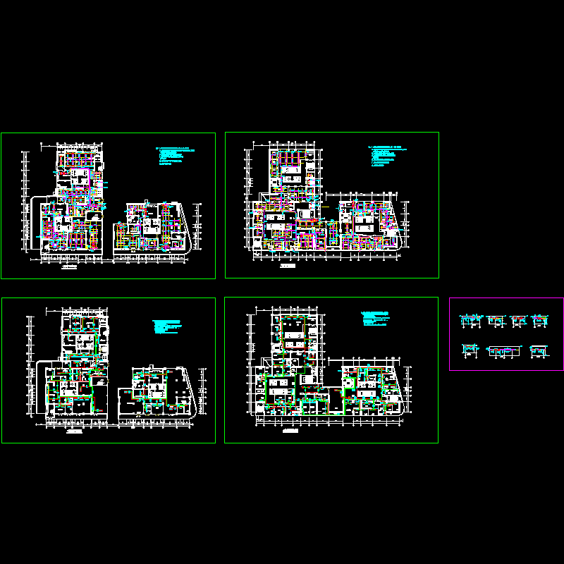
本图为商场风管水管布置图,包括:一层风管、水管平面布置图,二层风管、水管平面布置图和风管、水管连接剖面图。
以下是附件的其中一部分截图,共1张,您也可以
搜索
更多您想要的资源
第 1 张图
以上是部分截图,请下载附件后查看完整高清内容
发布时间:2023-12-28
评论次数:0
浏览次数:0
文件大小:0.65 MB
收藏次数:0
文件名称:
附件-995798875789976776.rar
下载信息
加入收藏
赚取积分
立即下载
对不起,系统繁忙,请稍后再试,或联系管理员
对不起,您的积分余额不足,请
充值积分
恭喜购买成功!请
下载文件
相关下载
商场空调设计CAD图纸
商场空调设计CAD图纸
商场暖通空调设计全套图纸.dwg
商场空调通风设计图纸.dwg
商场空调通风防排烟设计
商场空调平面CAD图纸
商场空调施工CAD图纸
商场空调施工CAD图纸
商场空调施工CAD图纸
商场空调排烟CAD图纸(总)
嘉美商场空调平面CAD图纸
商场空调机房CAD图纸
6层商场空调平面CAD图纸
商场通风空调施工CAD图纸
中型商场空调施工全套图纸.dwg
建材商场空调暖通图纸.dwg
多层商场建筑空调通风系统设计施工图纸
开阔型商场空调通风系统设计施工图纸
4层小型商场空调系统设计施工图纸
商场中央空调系统设计施工图纸
全部评论
评论
网友评论仅友表达个人看法,并不表明本站同意其观点,不得发布违反法律法规的内容!
下载排行
5层商场空调设计施工图纸
3层小型商场空调通风设计施工图纸
大型购物商场暖通空调设计CAD施工图纸
多层商场暖通空调系统设计CAD施工图纸
3层商场中央空调设计CAD图纸
多层商场暖通空调系统设计CAD施工图纸
商场空调设计CAD施工图纸,共15张
4层商场空调设计CAD施工图纸
一套商场空调CAD施工图纸设计
4层商场空调设计CAD图纸,共12张
下载推荐
商场的中央空调设计格式图纸
商场通风和空调工程设计格式图纸
小商场空调及消防设计CAD施工图纸
商场空调系统设计CAD施工图纸
4层商场空调设计CAD施工图纸.dwg
4层商场空调设计CAD施工图纸.dwg
商场中央空调改造设计施工图纸.
商场空调系统毕业设计方案图纸.dwg
4层商场空调设计CAD施工图纸.dwg
上3层商场空调图纸(设计说明).dwg
网站首页
|
信息产业部备案/许可证编号:苏ICP备2021052619号-1
苏公网安备:32041102001778号
本站所有内容均由网友自主分享,仅供学习和参考,如有侵权内容或者违法行为,请及时联系站长删除。