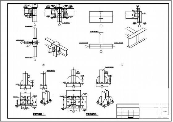
钢结构大门结构设计施工图纸(独立基础,共4张)
- 发布时间:2021-12-05
- 评论次数:0
- 浏览次数:0
- 文件大小:0.47 MB
- 收藏次数:0
-
文件名称:
附件-995877707908577085859.rar
钢结构基础设计图纸下载
- 独立基础钢结构雨篷设计施工图纸
- 线路铁塔基础设计图纸(钢结构).dwg
- 钢结构厂房及设备基础改造设计实例
- 钢结构罐基础结构设计说明
- 钢结构设计基础知识总结
- 框架结构厂房施工组织设计(钢结构屋面)(基础采用桩基础)
- 桩基础钢结构拱桥施工图纸
- 钢结构厂房独立基础施工节点构造详图纸
- 钢结构厂房结构CAD图纸(基础平面图)
- 钢结构工程独立基础结构CAD施工图纸
- 跨度20m单层钢结构厂房结构设计图纸(条形基础,独立基础)
- 全轻钢结构浅基础说明及节点
- 全轻钢结构桩基础说明及节点
- 钢结构基础CAD详大样图
- 独立基础钢结构网架加油站结构设计施工图纸
- 加气砌块编组车间钢结构设计施工图纸(独立基础)
- 独立基础钢结构雨蓬结构设计施工图纸(桁架结构)
- 两幢独立基础钢结构仓库结构设计施工图纸
- 钢结构通廊结构设计施工图纸(独立基础,共12张)
- 钢结构厂房结构设计施工图纸(独立基础,共11张)
全部评论
评论网友评论仅友表达个人看法,并不表明本站同意其观点,不得发布违反法律法规的内容!
