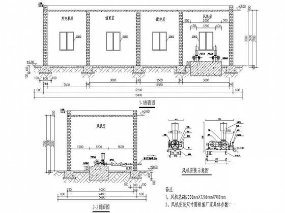
单层砌体结构污水处理厂综合用房施工图纸
- 发布时间:2021-12-05
- 评论次数:0
- 浏览次数:0
- 文件大小:0.75 MB
- 收藏次数:0
- 
								文件名称: 附件-995879999997960775758.rar 附件-995879999997960775758.rar
								单层砌体结构图纸下载
							
						- 污水处理厂综合用房CAD施工方案图纸
- 砌体结构污水处理厂结构CAD施工图纸(6度抗震)
- 单层砌体结构辅助用房结构CAD施工方案图纸(民用建筑设计)
- 单层框架结构污水处理厂全套施工图纸
- 单层厂房污水处理厂紫外消毒池结构CAD施工图纸
- 地上单层砌体结构污水池结构CAD施工图纸(柱下独立基础)
- 地上单层砌体结构污水池结构CAD施工方案图纸
- 3层框架结构污水处理厂管理用房结构CAD施工图纸
- 4层污水处理厂综合楼结构CAD施工图纸
- 单层污水处理厂电气CAD施工图纸(二级负荷)
- 城市污水处理厂区综合管线结构图纸
- 条形基础单层砌体结构辅助用房结构CAD施工图纸(7度抗震)(平面布置图)
- 污水处理厂综合楼给排水CAD施工方案图纸
- 污水处理厂3层综合楼电气CAD施工图纸
- 单层附属用房电气施工CAD图纸
- 单层砼实心砖砌体停车场公卫及管理用房结构施工图
- 单层污水处理厂设计CAD图纸(建筑图纸)(基础结构图)
- 地上单层砌体结构公厕结构CAD施工图纸
- 单层砌体结构平房结构CAD施工方案图纸
- 单层砌体结构库房结构CAD施工方案图纸
全部评论
						
							评论网友评论仅友表达个人看法,并不表明本站同意其观点,不得发布违反法律法规的内容!
						
						
 
	              	 
	              	