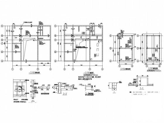
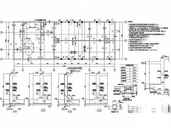
日处理7100立方米污水处理站结构竣工图纸
- 发布时间:2021-12-04
- 评论次数:0
- 浏览次数:0
- 文件大小:0.81 MB
- 收藏次数:0
-
文件名称:
附件-995888996759858777867.rar
污水处理站图纸下载
- 污水处理站竣工CAD图纸
- 污水处理站竣工CAD图纸,含结构设计说明
- 日处理水量15000吨污水处理厂工艺施工图纸
- 污水处理厂施工组织设计(日处理5万t)
- 日处理5000吨印染废水处理站施工图纸
- 污水处理站结构CAD施工图纸
- 医院污水处理工程改造竣工图纸
- 医院污水处理工程竣工图纸.
- 4万吨/日污水处理厂施工组织设计
- 城市污水处理厂(日处理量3万吨)施工图纸全集
- 日处理水量15000吨污水处理厂工艺CAD施工图纸(相关设计规范)
- 日处理450立方米污水处理池CAD施工大样图
- 别墅生活污水处理成套大样图(日处理360立方).dwg
- 温泉中心污水处理站施工图纸
- 小区污水处理站CAD施工图纸
- 污水处理站电气CAD图纸
- 污水处理站电气CAD图纸
- 污水处理站总CAD图纸
- 小区污水处理站施工CAD图纸
- 小型污水处理站电气施工CAD图纸
全部评论
评论网友评论仅友表达个人看法,并不表明本站同意其观点,不得发布违反法律法规的内容!
