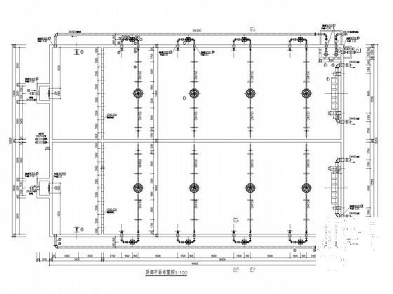
日处理水量15000吨污水处理厂工艺施工图纸
- 发布时间:2021-11-22
- 评论次数:0
- 浏览次数:0
- 文件大小:3.74 MB
- 收藏次数:0
-
文件名称:
附件-995860950775768767855.rar
污水处理厂施工图下载
- 日处理水量15000吨污水处理厂工艺CAD施工图纸(相关设计规范)
- 污水处理厂施工组织设计(日处理5万t)
- 污水处理厂工艺CAD图纸
- 4万吨/日污水处理厂施工组织设计
- 城市污水处理厂(日处理量3万吨)施工图纸全集
- 城市污水处理厂全套工艺施工大样图(CASS工艺)
- 城市污水处理厂工艺CAD图纸(CASS工艺)
- 污水处理厂水处理工艺设计CAD图纸()
- 10000m³/日污水处理工程工艺CAD施工图纸
- A2O工艺污水处理厂施工图纸
- 市污水处理厂工艺施工图纸
- 污水处理厂MSBR工艺设计全套施工图纸
- 国内市A2O工艺污水处理厂施工图纸
- 污水处理厂工艺设计CAD施工图纸
- 污水处理厂MBR工艺CAD施工图纸
- 市污水处理厂工艺CAD施工方案图纸
- 污水处理厂工艺CAD施工图纸
- 污水处理厂工艺CAD施工图纸
- 污水处理厂工艺施工设计图纸
- 污水处理厂整套工艺CAD施工图纸.dwg
全部评论
评论网友评论仅友表达个人看法,并不表明本站同意其观点,不得发布违反法律法规的内容!
