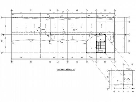
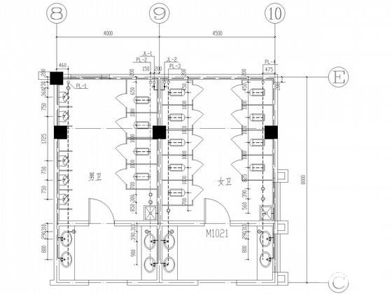
3层中学活动中心给排水CAD施工大样图
- 发布时间:2023-12-28
- 评论次数:0
- 浏览次数:0
- 文件大小:0.03 MB
- 收藏次数:0
- 
								文件名称: 附件-995860858757587777608.rar 附件-995860858757587777608.rar
								相关下载
							
						- 3层中学活动中心给排水CAD施工图纸
- 6层活动中心给排水大样图
- 活动中心给排水大样图
- 5层健身活动中心给排水消防CAD施工大样图
- 6层青少年活动中心给排水CAD施工大样图
- 4层砌体结构中学青少年活动中心建筑CAD施工图纸
- 16层中学综合楼给排水CAD施工大样图
- 花园文化活动中心给排水CAD图纸
- 11层体育活动中心给排水CAD施工大样图(热水系统)
- 国内中学3层体育活动中心电气CAD图纸
- 活动中心空调安装大样图纸CAD
- 中学餐厅给排水设计图纸
- 中学教学楼给排水设计
- 中学给排水全套图纸.dwg
- 中学操场给排水施工图纸平面图
- 6层中学宿舍给排水CAD施工图纸
- 5层中学教学给排水CAD施工图纸
- 中学给排水CAD施工方案图纸
- 国内中学3层体育活动中心电气CAD施工图纸(综合布线系统)
- 4层中学青少年活动中心结构设计CAD施工图纸
全部评论
						
							评论网友评论仅友表达个人看法,并不表明本站同意其观点,不得发布违反法律法规的内容!
						
						
 
	              	 
	              	 
	              	