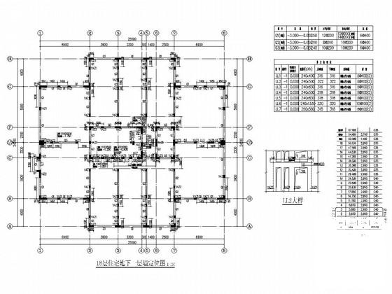
18层装配式剪力墙结构公租房结构施工大样图
- 发布时间:2021-12-04
- 评论次数:0
- 浏览次数:0
- 文件大小:3.88 MB
- 收藏次数:0
- 
								文件名称: 附件-995887559989888090797.rar 附件-995887559989888090797.rar
								装配式剪力墙结构下载
							
						- 30层剪力墙结构花园公租房结构施工大样图
- 19层剪力墙结构公租房住宅结构CAD施工大样图
- 18层钻孔桩剪力墙公租房、廉租房结构CAD施工图纸
- 18层钻孔桩剪力墙公租房、廉租房结构CAD施工大样图
- 19层剪力墙结构公租房住宅楼结构施工大样图
- 18层现浇剪力墙结构公租房结构施工大样图平面布置图
- 30层剪力墙结构花园公租房结构CAD施工大样图(CFG桩)
- 筏板基础公租房框架剪力墙结构CAD施工图纸
- 筏板基础,公租房框架剪力墙结构CAD施工图纸
- 6层砌体公租房结构CAD施工图纸
- 20层公租房2#、3#结构
- 19层剪力墙结构公租房住宅结构CAD施工大样图(详细建筑大样图)
- 两栋25层剪力墙结构公租房结构CAD施工图纸(建筑图纸).dwg
- 1500平米3层框架结构公租房商业楼结构施工大样图
- 地上11层框架结构公租房结构设计施工图纸
- 砌体结构,条形基础三栋公租房结构CAD施工图纸
- 3层框架结构公租房结构CAD施工图纸2015
- 公租房给排水CAD施工图纸
- 公租房项目水电安装专项施工方案.doc
- 高层剪力墙公租房设计说明及桩基详细CAD图纸
全部评论
						
							评论网友评论仅友表达个人看法,并不表明本站同意其观点,不得发布违反法律法规的内容!
						
						
 
	              	 
	              	 
	              	 
	              	 
	              	