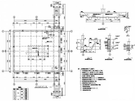
大型居住小区地下水泵房结构施工图纸(2栋)
- 发布时间:2021-12-03
- 评论次数:0
- 浏览次数:0
- 文件大小:1.15 MB
- 收藏次数:0
- 
								文件名称: 附件-995888959778897786886.rar 附件-995888959778897786886.rar
								小区地下水泵房下载
							
						- 大型居住小区垃圾房及门卫结构施工图纸
- 大型小区地下室结构CAD施工图纸
- 地下水泵房电气设计.dwg
- 地下1层大型地下室结构CAD施工图纸
- 2层大型垃圾转运站及水泵房强电施工图纸
- 大型火电厂施工组织设计(综合水泵房)
- 浅谈大型地下室结构设计.pdf
- 居住小区环境初探
- 大型人防地下室_CAD
- 一套高层地下室水泵房设计CAD施工图纸
- 大型地下车库全套设备施工图纸
- 附院大型地下室电气施工图纸
- 大型地下车库电气施工图纸(2019)
- 大型地下商场给排水施工图纸
- 大型酒店建筑施工CAD图纸(地下1层)
- 居住小区规划建筑CAD图纸
- 覆土500地下水泵房结构设计施工图纸.
- 地下2层大型地下室给排水CAD施工图纸
- 12层商住楼给排水CAD图纸(地下室水泵房)
- 国内项目地下室热水泵房三维CAD图纸
全部评论
						
							评论网友评论仅友表达个人看法,并不表明本站同意其观点,不得发布违反法律法规的内容!
						
						
 
	              	 
	              	 
	              	 
	              	