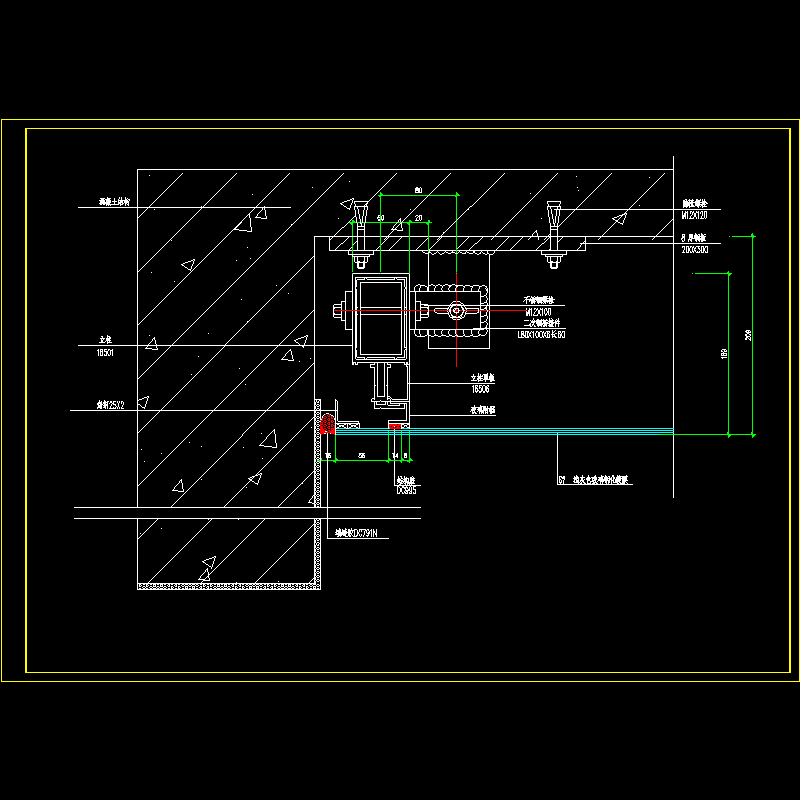
玻璃幕墙及铝合金型材节点构造CAD详图纸(三)
- 发布时间:2023-12-28
- 评论次数:0
- 浏览次数:0
- 文件大小:0.03 MB
- 收藏次数:0
- 
								文件名称: 附件-995908798809889788.rar 附件-995908798809889788.rar
								相关下载
							
						- 玻璃幕墙及铝合金型材节点构造详细设计CAD图纸(一)
- 玻璃幕墙及铝合金型材节点构造CAD详图纸(七)
- 玻璃幕墙及铝合金型材节点构造CAD详图纸(五)
- 玻璃幕墙及铝合金型材节点构造CAD详图纸(二)
- 玻璃幕墙及铝合金型材节点构造CAD详图纸(八)
- 玻璃幕墙及铝合金型材节点构造CAD详图纸(六)
- 玻璃幕墙及铝合金型材节点构造CAD详图纸(四)
- 玻璃幕墙及铝合金型材节点详细设计CAD图纸
- 玻璃幕墙及铝合金型材节点CAD详图纸
- 铝合金型材幕墙节点构造详细设计CAD图纸
- 铝合金型材幕墙节点构造CAD详图纸.dwg
- 玻璃幕墙及铝合金型材节点详细设计CAD图纸(,10张)(轻钢龙骨石膏板)
- 铝合金型材模图纸表二cad
- 铝合金型材模图纸表一cad
- 建筑工程幕墙节点及型材节点构造详细设计CAD图纸
- 玻璃幕墙构造CAD详大样图
- 隐框玻璃幕墙节点(三)
- 坡屋面平法构造及补充大样节点构造详施工图纸cad
- 结构节点构造详施工图纸
- 铝合金窗节点构造CAD详图纸
全部评论
						
							评论网友评论仅友表达个人看法,并不表明本站同意其观点,不得发布违反法律法规的内容!
						
						
