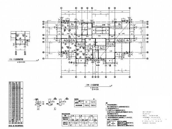
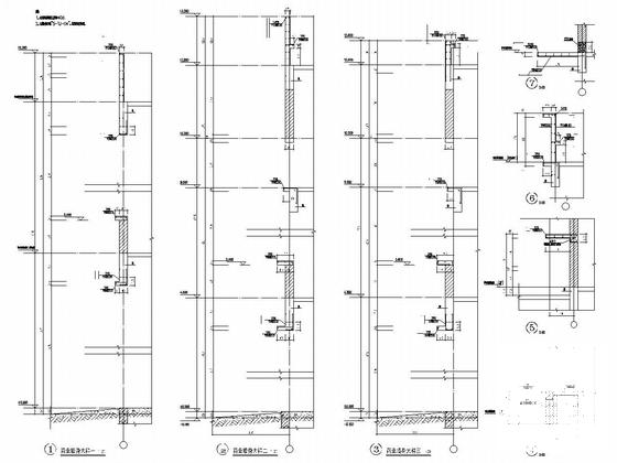
26层剪力墙结构住宅楼结构施工大样图人工挖空灌注桩设计说明
- 发布时间:2021-12-03
- 评论次数:0
- 浏览次数:0
- 文件大小:4.56 MB
- 收藏次数:0
- 
								文件名称: 附件-995888970597668977857.zip 附件-995888970597668977857.zip
								人工挖空灌注桩下载
							
						- 人工挖孔灌注桩详图纸
- 人工挖孔灌注桩桩基设计说明
- 人工挖孔灌注桩CAD施工图纸
- 人工挖孔灌注桩设计说明
- 人工灌注桩节点构造详图纸cad
- 人工挖孔灌注桩大样及说明cad
- 椭圆形人工挖孔灌注桩及圆形人工挖孔扩底灌注桩结构CAD图纸
- 沉管灌注桩、人工挖孔灌注桩、锚杆静压桩CAD详图纸
- 人工挖孔灌注桩施工用节点构造详图纸
- 独栋别墅结构CAD施工图纸(人工挖孔灌注桩)
- 码头公寓建筑结构水电CAD图纸(人工挖孔灌注桩)
- 人工挖孔灌注桩设计说明、独立基础设计说明
- 地下室桩基础节点详细设计CAD图纸(人工挖孔灌注桩)
- 人工挖孔灌注桩施工用节点构造详细设计CAD图纸
- 人工挖孔灌注桩设计说明及节点构造详细CAD图纸
- 食堂人工挖孔扩底灌注桩基础CAD施工大样图
- 人工挖孔灌注桩全套设计CAD大样图
- 人工挖孔灌注桩结构CAD图纸(圆形桩椭圆形桩)
- 实验楼项目人工挖孔灌注桩基础CAD施工图纸
- 别墅人工挖孔扩底灌注桩基础结构CAD图纸
全部评论
						
							评论网友评论仅友表达个人看法,并不表明本站同意其观点,不得发布违反法律法规的内容!
						
						
 
	              	 
	              	 
	              	 
	              	 
	              	