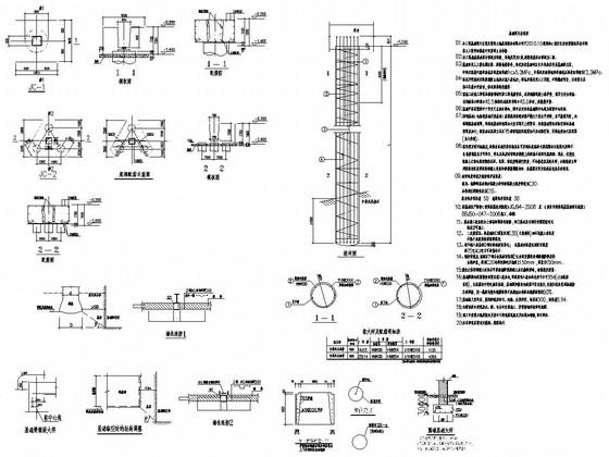
大型网架结构汽车整机库房车间结构CAD施工图纸(人工挖孔灌注桩)
- 发布时间:2022-09-18
- 评论次数:0
- 浏览次数:0
- 文件大小:9.51 MB
- 收藏次数:0
-
文件名称:
附件-995877786588689587506.rar
相关下载
- 大型网架结构汽车整机库房车间结构CAD施工大样图
- 人工挖孔灌注桩CAD施工图纸
- 人工挖孔灌注桩详图纸
- 椭圆形人工挖孔灌注桩及圆形人工挖孔扩底灌注桩结构CAD图纸
- 人工挖孔灌注桩桩基设计说明
- 人工挖孔灌注桩设计说明
- 人工挖孔灌注桩大样及说明cad
- 独栋别墅结构CAD施工图纸(人工挖孔灌注桩)
- 码头公寓建筑结构水电CAD图纸(人工挖孔灌注桩)
- 人工挖孔灌注桩结构CAD图纸(圆形桩椭圆形桩)
- 别墅人工挖孔扩底灌注桩基础结构CAD图纸
- 人工挖孔桩说明
- 人工挖孔桩说明
- 人工挖孔桩图纸及说明和挖孔灌注桩详图,挖孔桩顶护筒大样
- 人工挖孔灌注桩施工用节点构造详图纸
- 人工挖孔灌注桩施工用节点构造详细设计CAD图纸
- 实验楼项目人工挖孔灌注桩基础CAD施工图纸
- 椭圆形人工挖孔灌注桩CAD施工图纸
- 人工挖孔扩底灌注桩基础CAD施工图纸
- 人工挖孔灌注桩基础CAD施工图纸
全部评论
评论网友评论仅友表达个人看法,并不表明本站同意其观点,不得发布违反法律法规的内容!
