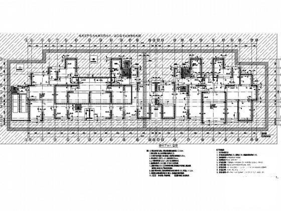
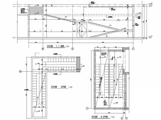
24层剪力墙结构高层住宅楼结构施工大样图
- 发布时间:2021-12-03
- 评论次数:0
- 浏览次数:0
- 文件大小:9.36 MB
- 收藏次数:0
- 
								文件名称: 附件-995888070987586588078.rar 附件-995888070987586588078.rar
								高层住宅图下载
							
						- 34层剪力墙高层住宅楼结构施工大样图
- 18层剪力墙高层住宅楼结构施工大样图
- 27层剪力墙高层住宅楼结构施工大样图
- 24层剪力墙高层住宅楼结构施工大样图
- 高层剪力墙结构住宅楼节点大样图纸
- 34层剪力墙结构高层住宅楼结构施工大样图模板图
- 地上32层剪力墙结构高层住宅楼结构施工大样图
- 29层剪力墙结构高层住宅楼结构施工大样图
- 25层剪力墙结构高层住宅楼结构施工大样图平面图
- 32层剪力墙结构高层住宅楼建筑结构施工大样图
- 27层剪力墙结构高层住宅楼结构施工大样图
- 28层框架剪力墙结构高层住宅楼结构施工大样图
- 31层剪力墙结构高层住宅楼结构施工大样图
- 高层剪力墙结构住宅楼结构施工大样图(高77米)
- 9层剪力墙结构高层住宅楼结构施工大样图
- 30层剪力墙结构高层住宅楼结构施工大样图
- 25层剪力墙结构高层住宅楼结构施工大样图
- 四栋28层剪力墙结构高层住宅楼结构施工大样图
- 34层剪力墙结构高层住宅楼结构施工大样图
- 18层剪力墙结构高层住宅楼地上部分结构施工大样图
全部评论
						
							评论网友评论仅友表达个人看法,并不表明本站同意其观点,不得发布违反法律法规的内容!
						
						
 
	              	 
	              	 
	              	 
	              	 
	              	