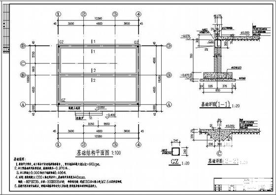
113平米单层木结构住宅楼建筑结构设计施工大样图(8度抗震)
- 发布时间:2021-11-22
- 评论次数:0
- 浏览次数:0
- 文件大小:0.4 MB
- 收藏次数:0
-
文件名称:
附件-995879550578055077565.rar
木结构建筑施工下载
- ]80平米单层木结构住宅楼建筑结构设计施工大样图
- 单层木结构仿古建筑施工图纸
- 单层砖木结构道观建筑施工图纸
- 单层木结构农家院建筑结构设计施工图纸
- 单层木结构农家院建筑结构设计CAD施工图纸
- 农村居住建筑抗震构造图纸集-木结构建筑CAD图纸集
- 单层钢混结构厂房建筑结构施工大样图(7度抗震)
- 城市单层木结构水榭建筑施工图纸(高5米)
- 单层砖木结构全聚德牌楼建筑施工CAD图纸(高8.5米)
- 单层木结构楹联亭建筑CAD施工图纸(高6米)
- 单层古建四角亭建筑结构设计施工大样图(木结构,砌体结构)
- 木结构居住建筑抗震构造CAD图纸(平面布置图)
- 单层砖木结构厂房建筑结构方案设计CAD图纸
- 单层砖木结构厂房建筑结构方案设计CAD初设图纸
- 木结构别墅构造大样图纸
- 公园大门木结构大样图.
- 1层113平米木结构住宅建筑结构设计CAD施工大样图
- 木结构耐火建筑物与传统木结构建筑设计.pdf
- 木结构设计总说明
- 单层门式刚架钢结构仓库建筑结构施工大样图(6度抗震)
全部评论
评论网友评论仅友表达个人看法,并不表明本站同意其观点,不得发布违反法律法规的内容!
